Generous rooms and practical utility space — ideal for first-time buyers seeking scope to improve..
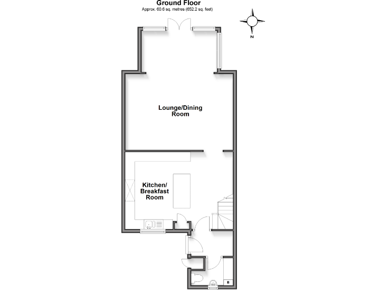
Open-plan lounge/diner with large room dimensions
Large kitchen/breakfast room and separate utility/cloakroom
Three double bedrooms, generous room sizes throughout
Freehold; mains gas heating and double glazing present
Small rear and front gardens with rear access
On-street parking available; reports of ample nearby space
Cavity walls assumed uninsulated — energy improvement needed
Located in a deprived area; single family bathroom only
This three-bedroom mid-terrace on Briscoe Road offers generous, well-proportioned rooms across a traditional layout, ideal for first-time buyers or growing families. The standout open-plan lounge/dining room creates a bright entertaining space, and the large kitchen/breakfast room plus a separate utility/cloakroom add everyday practicality. Room dimensions are notably generous for the price band, giving flexibility for home working or play.
Externally there are modest front and rear gardens with rear access—useful for bikes and bins—and parking is available on-street with reports of ample space nearby. The property is freehold and benefits from mains gas heating, double glazing and fast broadband, making it ready for modern family life.
Buyers should be aware of a few material considerations: the house sits in a deprived local area classification, the plot is small, and cavity walls appear to lack insulation (assumed). There is a single family bathroom, so households needing more facilities may want to plan alterations. Overall the house presents strong scope for targeted improvements and cosmetic updating to increase value.
Local schools rated Good are within walking distance, and nearby amenities include shops, healthcare, sports and bus links. For buyers seeking roomy accommodation in a convenient Pitsea location and willing to invest modestly in energy improvements or cosmetic modernisation, this property offers solid potential.
3 bedroom terraced house for sale in Malyons Place, Basildon, Essex, SS13 — £290,000 • 3 bed • 1 bath • 915 ft²
2 bedroom terraced house for sale in Daltons Fen, Pitsea, Basildon, Essex, SS13 — £270,000 • 2 bed • 1 bath • 679 ft²
3 bedroom terraced house for sale in Briscoe Road, Pitsea, Basildon, Essex, SS13 — £215,000 • 3 bed • 1 bath • 1029 ft²
2 bedroom terraced house for sale in Eastbrooks Place, Pitsea, Basildon, Essex, SS13 — £280,000 • 2 bed • 1 bath • 840 ft²
2 bedroom end of terrace house for sale in Malyons Place, Basildon, Essex, SS13 — £260,000 • 2 bed • 1 bath • 862 ft²
3 bedroom terraced house for sale in Briscoe Road, Pitsea, SS13 — £300,000 • 3 bed • 1 bath • 958 ft²






























































