Large plot, versatile rooms and excellent local schools for growing households.
33ft lounge-diner ideal for entertaining and family living
Five double bedrooms plus one single — versatile room options
Three bathrooms, including private master ensuite
Large rear garden with raised patio; good outdoor space
Off-street parking for several cars and single garage
Built c.1976–82; timber-frame construction assumed
Double glazing present but install date unknown
Council tax band described as expensive
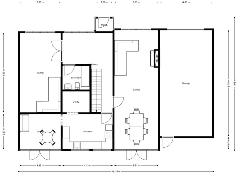
This generous detached house on Auckland Way provides flexible space for a growing or multi-generational family. The layout includes a 33ft lounge-diner, separate family and sitting rooms, five double bedrooms plus a single, and three bathrooms including an ensuite — offering practical living and plenty of privacy for everyone.
Set on a large plot with off-street parking for multiple vehicles and a garage, the property benefits from a substantial rear garden and raised patio ideal for children and outdoor entertaining. The kitchen includes an eat-in area, utility room and pantry, and the welcoming hallway contains a handy study nook — useful for home working or homework supervision.
Built in the late 1970s–early 1980s with a timber-frame construction (assumed), the house is well presented but buyers should note some practical points: the double glazing install date is unknown and the property may need future modernisation in parts. Heating is mains-gas boiler and radiators; statutory council tax is described as expensive.
Located in the affluent West Park area with several highly rated local schools and low local crime, the home suits families seeking space and convenience rather than a move-in-without-any-work renovation. Its size and versatile rooms also make it attractive for buyers who need guest accommodation or a home office.
4 bedroom detached house for sale in Manor Road, Hartlepool, TS26 0, TS26 — £500,000 • 4 bed • 3 bath • 2454 ft²
5 bedroom detached house for sale in Elwick Road, Hartlepool, TS26 — £750,000 • 5 bed • 3 bath • 3154 ft²
4 bedroom detached house for sale in Hardwick Court, West Park, Hartlepool, TS26 — £590,000 • 4 bed • 2 bath • 1875 ft²
5 bedroom detached house for sale in Valley Drive, Hartlepool, TS26 — £399,950 • 5 bed • 2 bath • 1598 ft²
4 bedroom detached house for sale in Valley Drive, West Park, TS26 — £349,995 • 4 bed • 2 bath • 1303 ft²
4 bedroom semi-detached house for sale in Carisbrooke Road, West Park, Hartlepool, TS26 — £480,000 • 4 bed • 2 bath • 2340 ft²






























































































































