Secluded executive family residence with vast gardens and extensive parking.
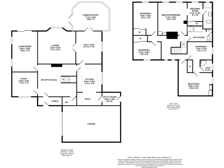
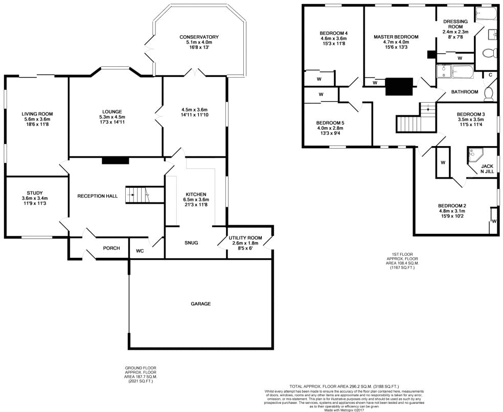
Five double bedrooms including master with en suite and walk-in dressing room
An individually designed five-bedroom detached house on a secluded, very large plot in desirable West Park. The house offers substantial living space across multiple reception rooms — a dual-aspect living room, formal lounge with bay window, sunny conservatory, study/playroom and a bespoke galleried hall with oak and glass staircase. The recently fitted kitchen has granite surfaces and fully integrated appliances; the master suite includes a walk-in dressing room and en suite.
Outdoor space is a major draw: private lane access, electric gates, a ten-vehicle driveway, large garage and a south-west facing mature rear garden with patio, fruit trees and sheds. The plot and privacy suit large-family living, entertaining and home-working needs, with low local crime and excellent mobile signal.
Practical considerations: the property is Freehold and centrally heated via mains gas with double glazing (install date unknown). The house is of pre-1900 construction with sandstone/limestone walls assumed to lack cavity insulation — further insulation works may be needed. Broadband speeds are reported slow; council tax is quite expensive. Overall, this is a high-spec family home with period character and modernised interiors, but buyers should allow for potential heritage-era maintenance and energy-efficiency upgrades.
4 bedroom detached house for sale in Park Avenue, Hartlepool, TS26 — £399,950 • 4 bed • 2 bath • 1594 ft²
5 bedroom detached house for sale in Auckland Way, West Park, TS26 — £375,000 • 5 bed • 3 bath • 2278 ft²
4 bedroom detached house for sale in West Park, Hartlepool, TS26 — £475,000 • 4 bed • 2 bath • 1768 ft²
5 bedroom detached house for sale in Valley Drive, Hartlepool, TS26 — £399,950 • 5 bed • 2 bath • 1598 ft²
4 bedroom detached house for sale in Parklands Way, Hartlepool, TS26 — £399,950 • 4 bed • 3 bath • 1348 ft²
4 bedroom detached house for sale in Valley Drive, Hartlepool, TS26 — £379,950 • 4 bed • 2 bath • 1063 ft²


























































































































































































