Contemporary two-bed home with garage, garden and easy town access.
Modern 2021-built two-bedroom coach house
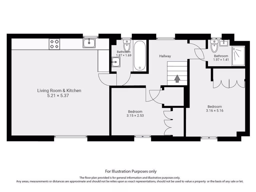
This contemporary two-bedroom terraced coach house in the Brunel Quarter offers low-maintenance, modern living a short walk from Chepstow town centre and the River Wye. The open-plan living, dining and kitchen area is bright and social, with integrated appliances and straightforward circulation for everyday life and entertaining.
The main bedroom includes fitted wardrobes and an en suite shower, while the second bedroom also benefits from fitted storage, suiting a couple, small family or home-worker. The integrated garage (currently used as a home gym) opens directly onto a private, easy-care garden — flexible space for storage, hobbies or outdoor dining.
Built in 2021 with around six years remaining on the NHBC warranty, the house is thermally efficient and gas-heated via boiler and radiators. Practical positives include driveway parking, fast broadband and excellent mobile signal. Local schooling options are close by, and town-centre amenities and transport links are within easy reach.
Notable practical considerations: the property sits in an area recorded as very deprived with very high local crime rates, and the plot and rooms are compact. Tenure is not specified; buyers should confirm tenure and check the remaining NHBC cover and any development management arrangements before committing.
2 bedroom terraced house for sale in Bailey Bridge Drive, Chepstow, NP16 — £275,000 • 2 bed • 2 bath • 1001 ft²
2 bedroom flat for sale in Woolpitch Wood, Chepstow, NP16 — £219,950 • 2 bed • 1 bath • 705 ft²
4 bedroom town house for sale in Bailey Bridge Drive, Brunel Quarter, Chepstow, NP16 — £374,950 • 4 bed • 2 bath • 1141 ft²
3 bedroom detached house for sale in Kingdom Court, Brunel Quarter, Cheopstow, NP16 — £384,950 • 3 bed • 2 bath • 862 ft²
3 bedroom end of terrace house for sale in Mabey Drive, Chepstow, NP16 5, NP16 — £300,000 • 3 bed • 2 bath • 622 ft²
3 bedroom end of terrace house for sale in Aubrey Close, Chepstow, NP16 5, NP16 — £325,000 • 3 bed • 2 bath • 612 ft²










































































































