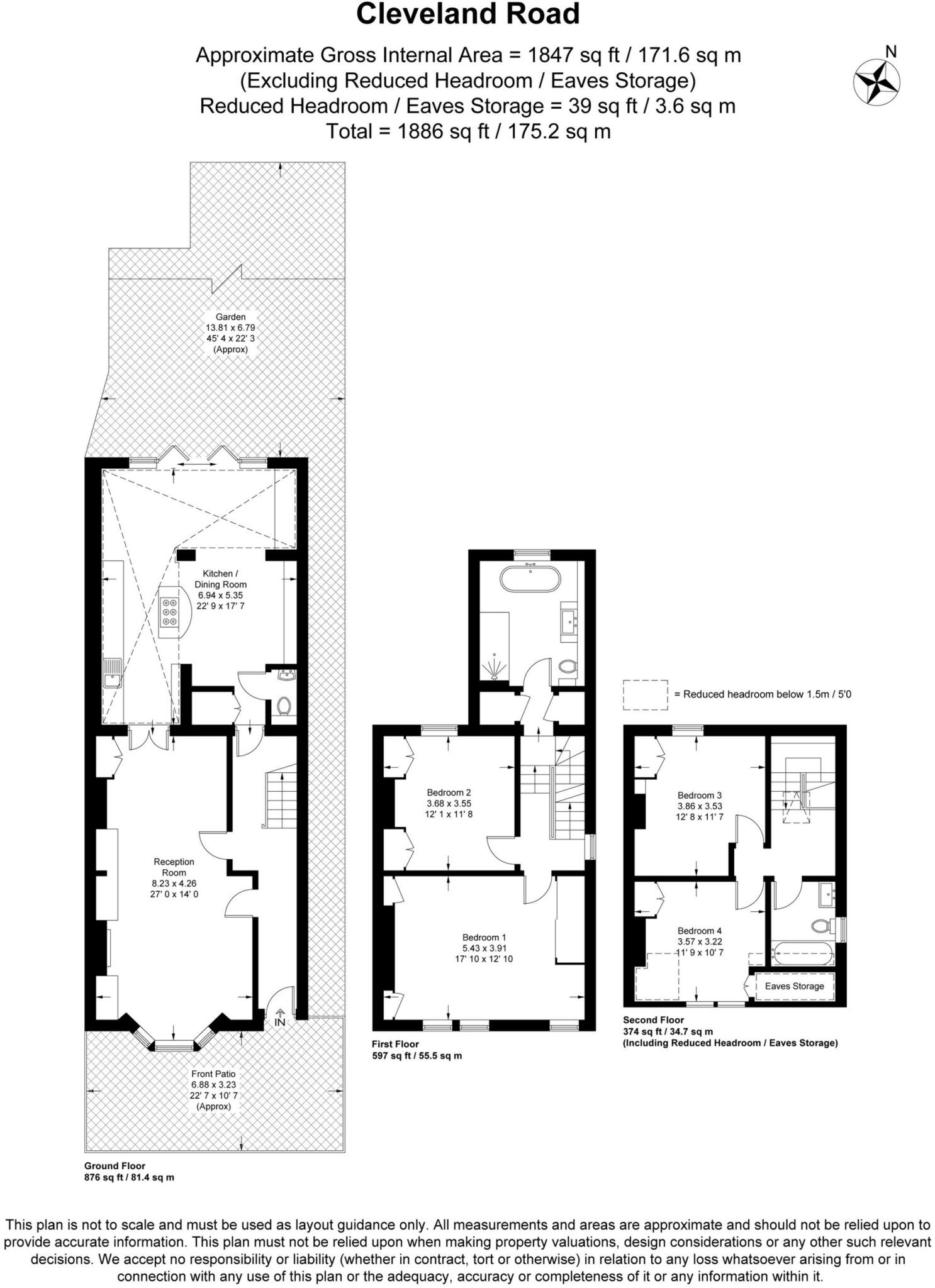
Victorian character meets a bright modern kitchen — perfect for family life by Barnes Pond.
Four bedrooms across three floors, two bathrooms
Bright open-plan kitchen with island and bifold doors to garden
Double reception with original bay window, shutters and cornicing
Secluded small garden with mature shrubs and side access
Approximately 1,847 sq ft; good internal space for families
Solid brick walls (1930s–1940s); likely no cavity insulation
Freehold; mains gas boiler and radiators heating
Fast broadband, excellent mobile signal; very low flood risk
Set back from Cleveland Road and moments from Barnes Pond, this semi‑detached four-bedroom house blends Victorian character with a bright, modern kitchen extension. The double reception room retains original shutters, cornicing and a bay window, while the open-plan kitchen with island, utility room and bifold doors opens onto a secluded garden with mature planting and side access.
Arranged over three floors, the home offers two double bedrooms and a large family bathroom on the first floor, with two further bedrooms and a second bathroom in the eaves on the top floor. At about 1,847 sq ft, the layout suits families seeking space close to outstanding local primary schools and village amenities.
Practical positives include fast broadband, excellent mobile signal, mains gas central heating and very low flood risk. The property is freehold and sits in a very affluent area with good transport links and a wide range of local shops, cafes and services.
Notable points to consider: the house dates from 1930–49 with solid brick walls likely without cavity insulation, so energy upgrades may be needed to improve efficiency. The garden and plot are relatively small for the size of the house, and the finish requires selective updating rather than a full refurbishment.
 5 bedroom semi-detached house for sale in Rectory Road, Barnes, London, SW13 — £2,400,000 • 5 bed • 2 bath • 2239 ft²
 5 bedroom semi-detached house for sale in Rectory Road, Barnes, London, SW13 — £2,400,000 • 5 bed • 2 bath • 2239 ft² 5 bedroom terraced house for sale in Cleveland Road, 
Barnes, SW13 — £2,200,000 • 5 bed • 2 bath • 1647 ft²
 5 bedroom terraced house for sale in Cleveland Road, 
Barnes, SW13 — £2,200,000 • 5 bed • 2 bath • 1647 ft² 6 bedroom semi-detached house for sale in Melville Road, Barnes, London, SW13 — £3,350,000 • 6 bed • 2 bath • 2885 ft²
 6 bedroom semi-detached house for sale in Melville Road, Barnes, London, SW13 — £3,350,000 • 6 bed • 2 bath • 2885 ft² 4 bedroom house for sale in White Hart Lane, Barnes, SW13 — £1,400,000 • 4 bed • 3 bath • 1608 ft²
 4 bedroom house for sale in White Hart Lane, Barnes, SW13 — £1,400,000 • 4 bed • 3 bath • 1608 ft² 3 bedroom terraced house for sale in Malthouse Passage, London, SW13 — £1,250,000 • 3 bed • 1 bath • 1168 ft²
 3 bedroom terraced house for sale in Malthouse Passage, London, SW13 — £1,250,000 • 3 bed • 1 bath • 1168 ft² 4 bedroom terraced house for sale in Rocks Lane, SW13 — £2,100,000 • 4 bed • 2 bath • 2298 ft²
 4 bedroom terraced house for sale in Rocks Lane, SW13 — £2,100,000 • 4 bed • 2 bath • 2298 ft²






































































