Space for a bespoke family home near top local schools.
Approximately 0.426 acre plot with open-field views
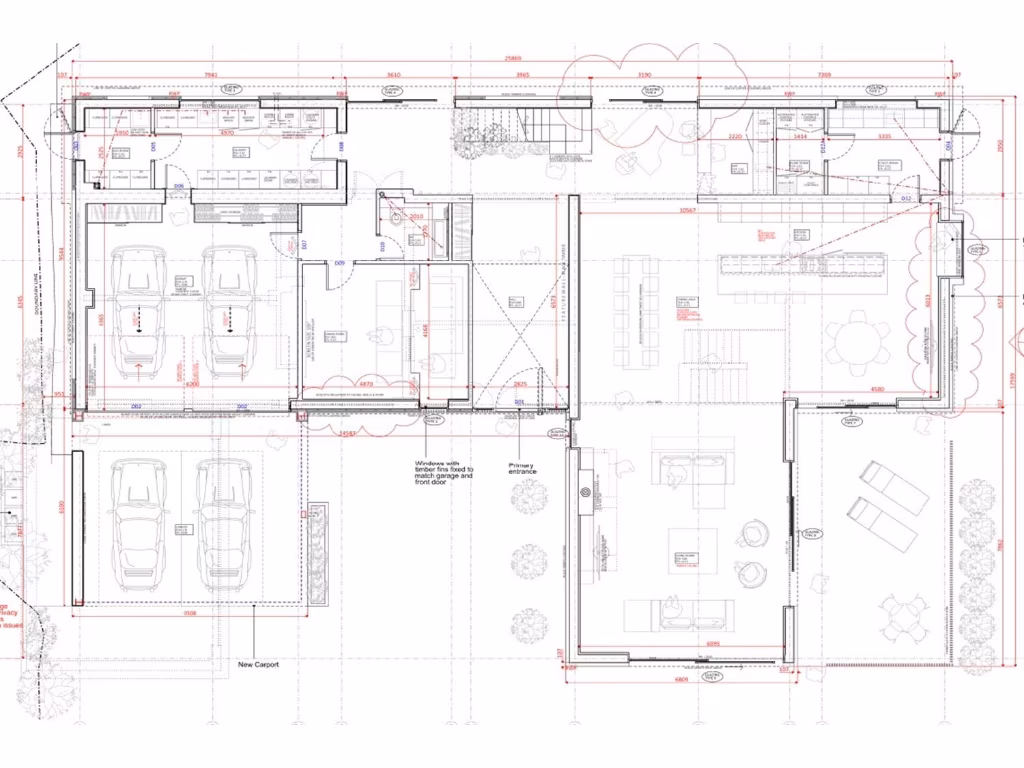
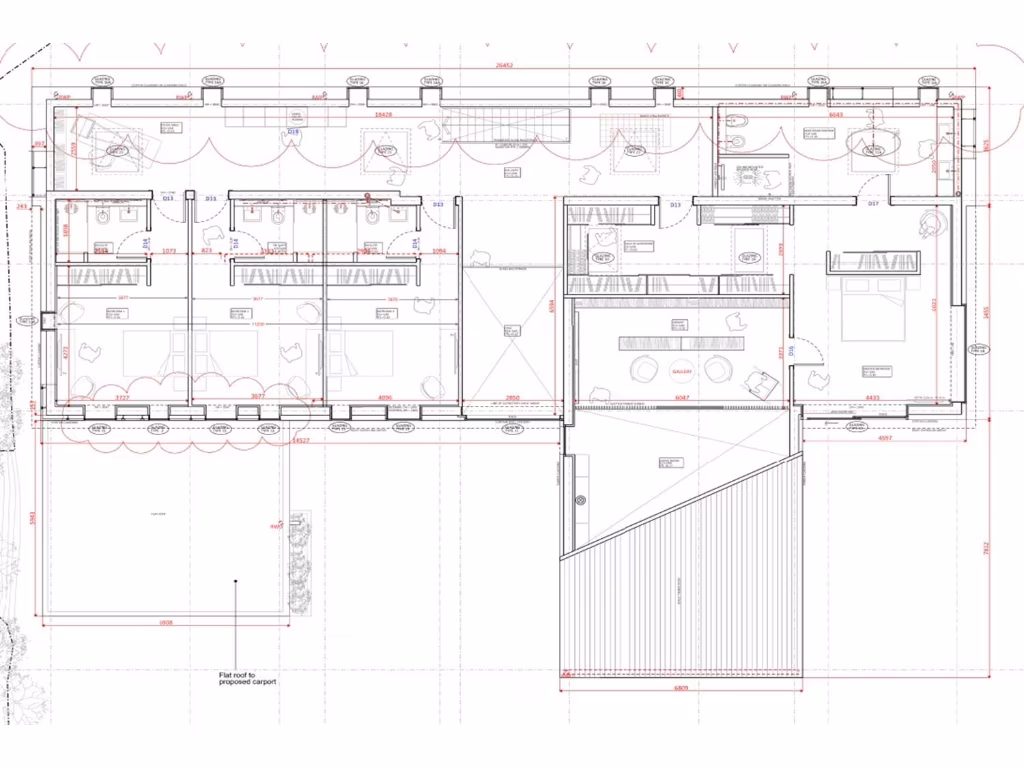
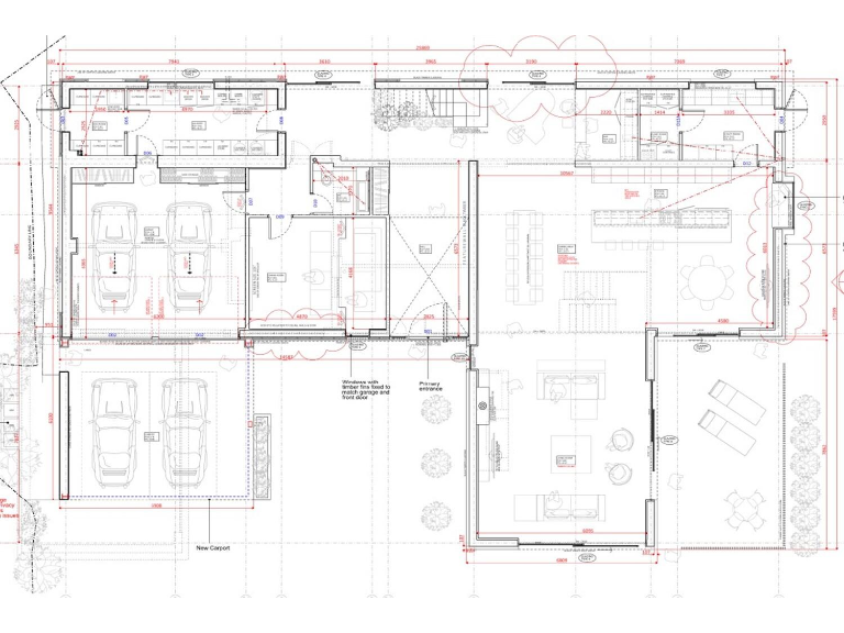
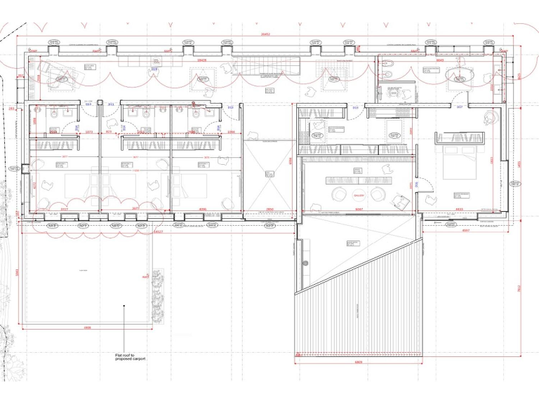
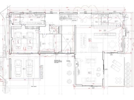
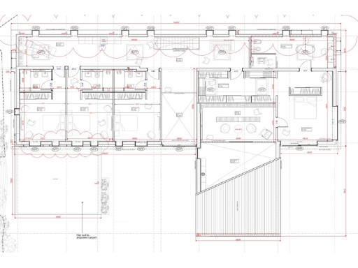
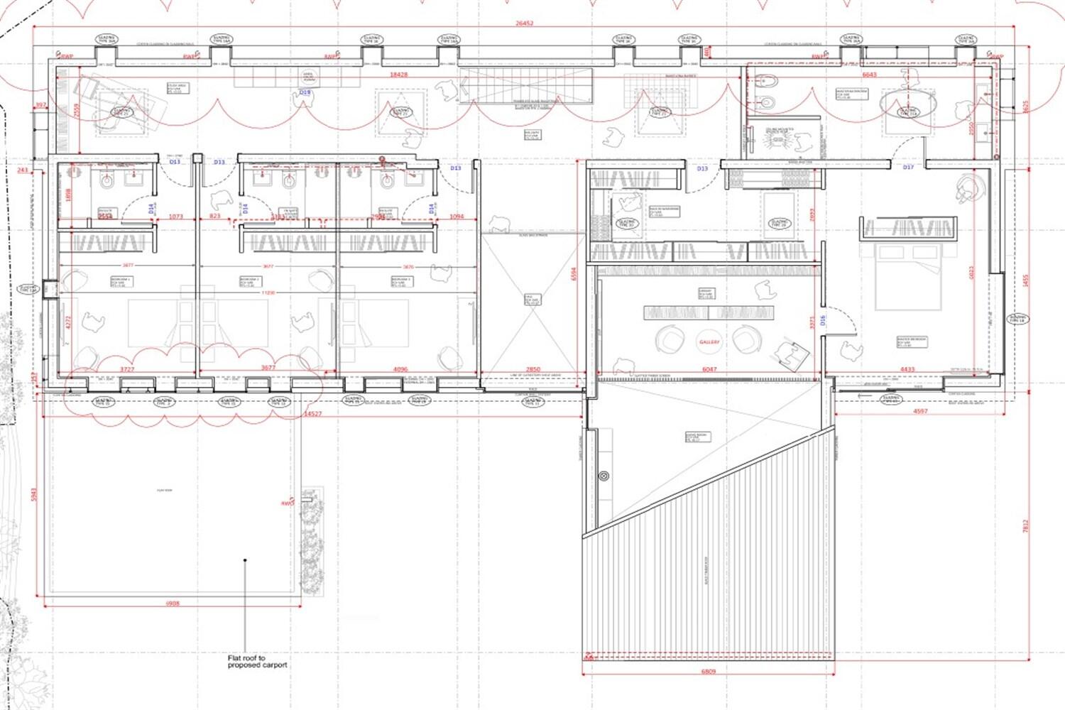
A rare, very large single building plot of about 0.426 acre with open-field views and mature tree screening. The site is freehold and lies in a quiet, popular Ashley location, offering space to deliver a substantial bespoke family house of roughly 5,000–5,500 sq ft as per submitted concept plans (Cheshire East planning ref 21/0838M).
The parcel benefits from elevated, private grounds and excellent mobile signal, making it suitable for a high-spec contemporary home with extensive glazing and an integral double garage. There is no flood risk and the setting borders natural meadow and woodland, giving privacy and rural character while still being within reach of excellent local schools.
Buyers should note material practical points: planning drawings are illustrative and subject to final consent; the currently overgrown external areas will require landscaping and clearance; broadband speeds in the area are slow; and recorded local crime levels are high. The hamlet/isolated setting suits purchasers seeking seclusion but may feel remote to some.
This opportunity is aimed at families or buyers planning a custom, high-value new build who can manage the construction process and on-site works. The plot’s scale and screening offer significant scope for a well-designed residence and private amenity space, but expect further surveys, services connections and landscaping costs before occupation.
Plot for sale in Lees Lane, Wilmslow, Cheshire, SK9 — £1,250,000 • 4 bed • 4 bath • 4638 ft²
Plot for sale in Coppice Road, SK12 — £900,000 • 1 bed • 1 bath
Land for sale in Church Lane, Woodford, SK7 — £450,000 • 4 bed • 3 bath • 3810 ft²
Land for sale in Hale Road, Hale Barns, WA15 — £1,750,000 • 5 bed • 2 bath • 3058 ft²
6 bedroom detached house for sale in Lacey Green, Wilmslow, Cheshire, SK9 — £499,950 • 6 bed • 3 bath • 4327 ft²
5 bedroom detached house for sale in Prestbury Road, Wilmslow, Cheshire, SK9 — £1,595,000 • 5 bed • 4 bath • 603 ft²










































