### Standout Features:
- **Location**: 6.3 acres of serene countryside, stunning views over Glens of Foundland and Bennachie.
- **Bedrooms**: 5 spacious bedrooms, including 1 en suite.
- **Modern Design**: Brand new build with contemporary design and large windows for natural light.
- **Family Spaces**: Generous lounge and an open-plan dining kitchen/family room, ideal for family gatherings.
- **Utility**: Dedicated utility/boot room for added convenience.
- **Garage**: Large detached garage/outbuilding (135 sqm) offers excellent storage or workspace.
- **Flexibility for Customization**: Potential to tailor interior choices during construction phase.
### Overview:
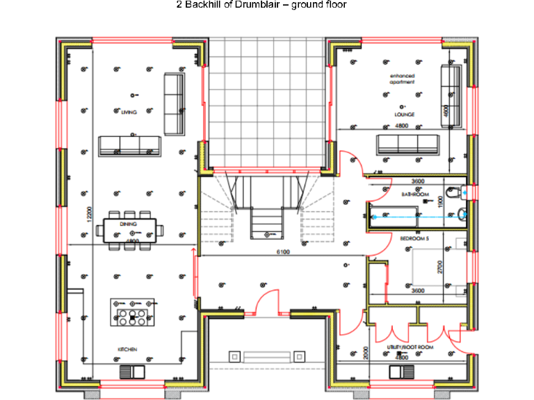
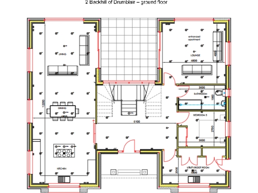
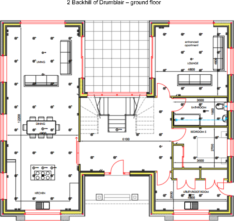
Introducing a unique opportunity to own a newly built, contemporary 5-bedroom detached home set on 6.3 acres in the idyllic countryside of Forgue. This spacious property, set to be completed in autumn 2025, is designed for modern family living with a large lounge, a dining kitchen/family room, and a convenient utility/boot room. The first floor offers a luxurious master suite complete with a dressing room and en suite, along with three additional double bedrooms, one having a charming Juliette balcony.
Surrounded by rolling hills and farmland, this property presents not only breathtaking panoramic views but also an environment ripe for outdoor pursuits. Although offered in a remote yet vibrant community, amenities such as schools and recreational activities are just a short distance away in Huntly and Turriff. While the property is connected to mains water and electricity and features energy-efficient air source heat pumps, prospective buyers should note that broadband speeds may be slow.
This property’s chain-free status and building under a six-year structural guarantee ensure peace of mind for buyers, making it a rare find in today’s market. Seize the chance to create your dream home in an exclusive and tranquil setting—perfect for families or anyone seeking a lifestyle defined by comfort and connection to nature. Don’t miss out!
4 bedroom detached house for sale in Backhill Of Drumblair, Forgue, Huntly, Aberdeenshire, AB54 — £535,000 • 4 bed • 3 bath • 2390 ft²
4 bedroom detached house for sale in Craigshannoch, Over Tocher, Meikle Wartle, Inverurie, Aberdeenshire, AB51 — £510,000 • 4 bed • 3 bath
3 bedroom detached house for sale in Inverkindling, Keith, AB45 — £410,000 • 3 bed • 2 bath • 1948 ft²
4 bedroom detached house for sale in Auchnavaird, Ellon, AB41 — £425,000 • 4 bed • 3 bath • 2131 ft²
4 bedroom detached house for sale in The Croft Plot 10 South Ythsie, Aberdeen, AB41 7LS, AB41 — £450,000 • 4 bed • 2 bath
5 bedroom detached house for sale in Cross Lodge, Cross Of Jackston, Rothienorman, Inverurie, Aberdeenshire, AB51 — £725,000 • 5 bed • 3 bath • 4209 ft²










































































