Income-producing mixed-use freehold in Castle Cary — two flats plus ground-floor office with growth potential..
Freehold mixed-use property in Castle Cary town centre
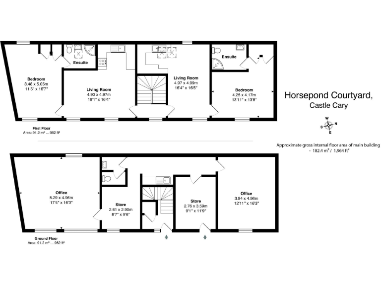
A rare freehold mixed-use opportunity in Castle Cary town centre, offered with immediate rental income and clear upside. The ground-floor office generates £6,720pa on an annually renewable lease; one first-floor one-bedroom flat is let at £470pcm and the second flat is vacant and ready for cosmetic refurbishment to increase rental income.
The buildings sit between the High Street and Millbrook Gardens car park, with secure keypad entry, a full alarm system and low-maintenance communal garden. The office could remain as income-producing space or be converted for retail or café/tea-room use, subject to requirement checks.
Practical considerations are straightforward: there is no parking included with the sale (public car park a 30-second walk away) and broadband speeds in the area are very slow. Flat 2 will need cosmetic work to reach the estimated £650pcm; the office lease is annually renewable with two months' notice, which suits flexible short-term lets but gives less long-term security.
This lot will suit an investor seeking a compact, town-centre portfolio with immediate yield and simple asset management, or an owner-occupier looking for mixed commercial/residential use and scope to add value through modest refurbishment.
1 bedroom apartment for sale in Horsepond Courtyard, The Triangle, Castle Cary, Somerset, BA7 — £120,000 • 1 bed • 1 bath • 440 ft²
2 bedroom apartment for sale in Victoria Court, Castle Cary, BA7 — £115,000 • 2 bed • 1 bath • 549 ft²
2 bedroom flat for sale in Millbrook Gardens, Castle Cary, Somerset, BA7 — £175,000 • 2 bed • 1 bath • 808 ft²
3 bedroom maisonette for sale in Horse Pond Inn, Castle Cary, BA7 — £425,000 • 3 bed • 2 bath • 2602 ft²
2 bedroom semi-detached house for sale in All Saints Cottages, Church Street, Castle Cary, BA7 — £285,000 • 2 bed • 1 bath • 836 ft²
2 bedroom flat for sale in Montague Gardens, Castle Cary, BA7 — £130,000 • 2 bed • 1 bath • 584 ft²


























































































