**Standout Features:**
- Newly renovated bathroom
- Dedicated off-street parking space
- Spacious living room with large windows
- Secure bicycle storage
- Gas central heating
- Located in a vibrant, cosmopolitan area
**Concerns:**
- Above-average crime rate in the area
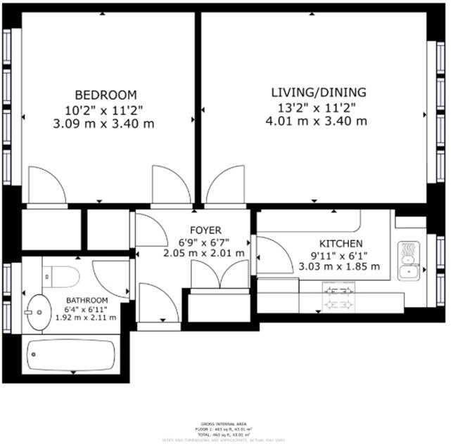
Welcome to this beautifully updated ground floor apartment nestled in the bustling area of East Oxford. Boasting a modern feel with a newly renovated bathroom and fresh flooring throughout, this cozy one-bedroom flat is perfect for first-time buyers or investors seeking rental potential. The spacious living room filled with natural light and a separate kitchen offer ample space to relax or entertain. Enjoy the convenience of a dedicated parking space, secure bike storage, and access to communal gardens, all part of a well-maintained property.
Situated in the heart of Temple Cowley, you're just minutes from local amenities, universities, and easy transportation links to the city center. With a reasonable service charge and low council tax, this property is not only affordable but provides an ideal base for students and commuters alike. Although the area experiences above-average crime rates, the affluent neighborhood offers comfort and security, creating a sense of community. This property presents a wonderful opportunity—don't miss your chance to claim a slice of East Oxford living!
2 bedroom flat for sale in Bennett Crescent, Oxford, OX4 — £275,000 • 2 bed • 1 bath • 564 ft²
1 bedroom apartment for sale in Don Bosco Close, Oxford, OX4 — £225,000 • 1 bed • 1 bath • 505 ft²
1 bedroom flat for sale in East Oxford, Oxford, OX4 — £250,000 • 1 bed • 1 bath • 379 ft²
2 bedroom apartment for sale in Chapel Street, East Oxford, OX4 — £320,000 • 2 bed • 1 bath • 640 ft²
1 bedroom apartment for sale in Denmark Street, East Oxford, OX4 — £280,000 • 1 bed • 1 bath • 462 ft²
2 bedroom apartment for sale in Cross Street, St Clements, East Oxford, OX4 — £350,000 • 2 bed • 1 bath • 509 ft²


































