Compact, well-presented flat ideal for a first purchase or rental income.
Allocated off-street parking and communal gardens
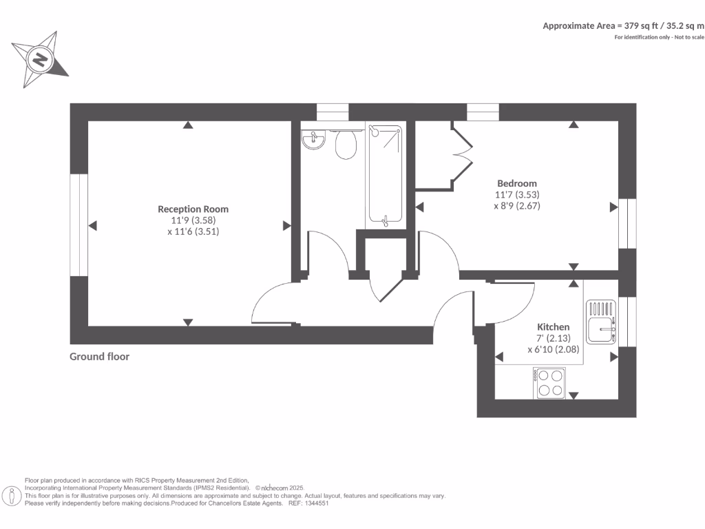
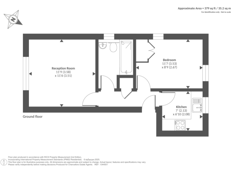
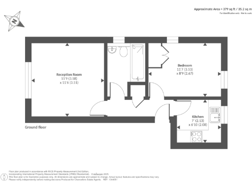
Compact 379 sq ft one-bedroom ground-floor flat
Offered chain-free for a faster completion
Approximately 95 years remaining on the lease
Currently operated as an Airbnb — income potential
Electric room heaters (no central heating) — possibly higher running costs
Area records above-average crime — consider security
Close to city centre, shops and public transport links
This ground-floor one-bedroom apartment in Temple Cowley offers compact, ready-to-move-in living a short ride from Oxford city centre. The apartment is well presented throughout, benefits from allocated off-street parking and communal gardens, and is offered with no onward chain — useful for a quick purchase or investment pick-up.
At about 379 sq ft the flat suits a first-time buyer or single occupant seeking low-maintenance city living. The living room receives good natural light through a large window; the fitted kitchen and bedroom are described as spacious for the size. Broadband and mobile signal are strong, supporting home working or short-term let use.
Practical points to note: the property uses electric room heaters rather than a central gas system, which can mean higher running costs. The lease has approximately 95 years remaining — sufficient for now but worth checking lender requirements if you plan to remortgage later. The building is in an area with above-average crime levels, so consider security measures.
The flat has been operated as an Airbnb, demonstrating rental demand and immediate income potential, but any purchaser should check local rules and building management policies before continuing that use. Overall this is a compact, well-presented flat that offers an affordable route into Oxford or a straightforward rental opportunity, provided you accept the size and heating arrangement.
1 bedroom flat for sale in East Oxford, Oxford, OX4 — £235,000 • 1 bed • 1 bath • 430 ft²
2 bedroom flat for sale in Lizmans Court, Temple Cowley, OX4 — £200,000 • 2 bed • 1 bath • 441 ft²
2 bedroom ground floor flat for sale in Oxford Road, Cowley, Oxford, OX4 — £275,000 • 2 bed • 1 bath • 549 ft²
1 bedroom flat for sale in Walton Manor, North Oxford, OX2 — £325,000 • 1 bed • 1 bath • 350 ft²
2 bedroom flat for sale in Cowley, East Oxford, OX4 — £310,000 • 2 bed • 2 bath • 581 ft²
1 bedroom flat for sale in East Oxford, Oxford, OX4 — £220,000 • 1 bed • 1 bath • 377 ft²


































































































