One-acre plot with stunning open-plan kitchen and countryside views, ideal for entertaining.
Just over 1 acre plot including fenced paddock
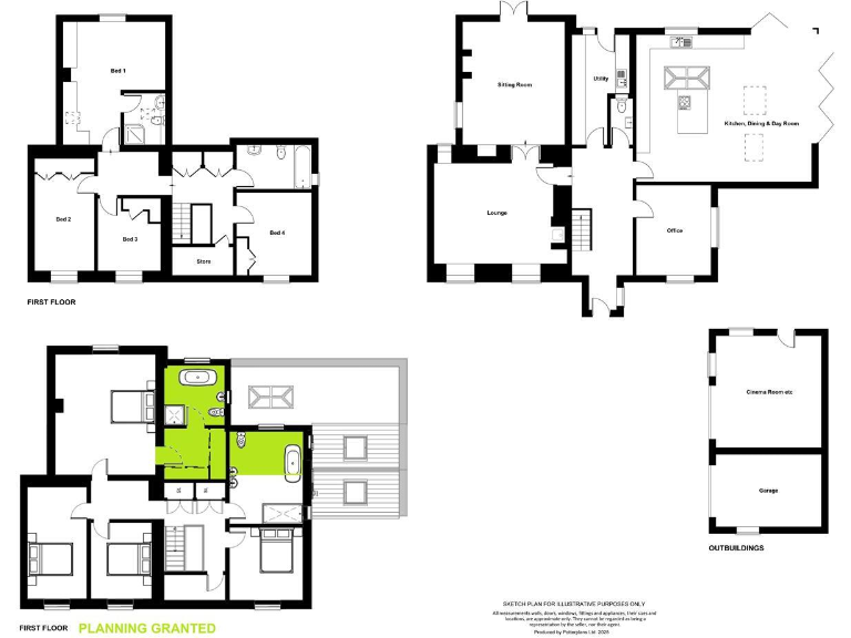
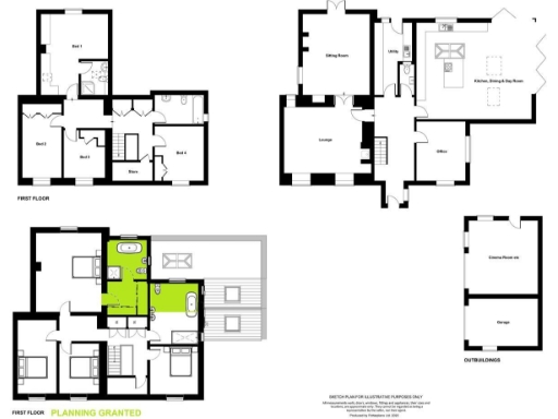
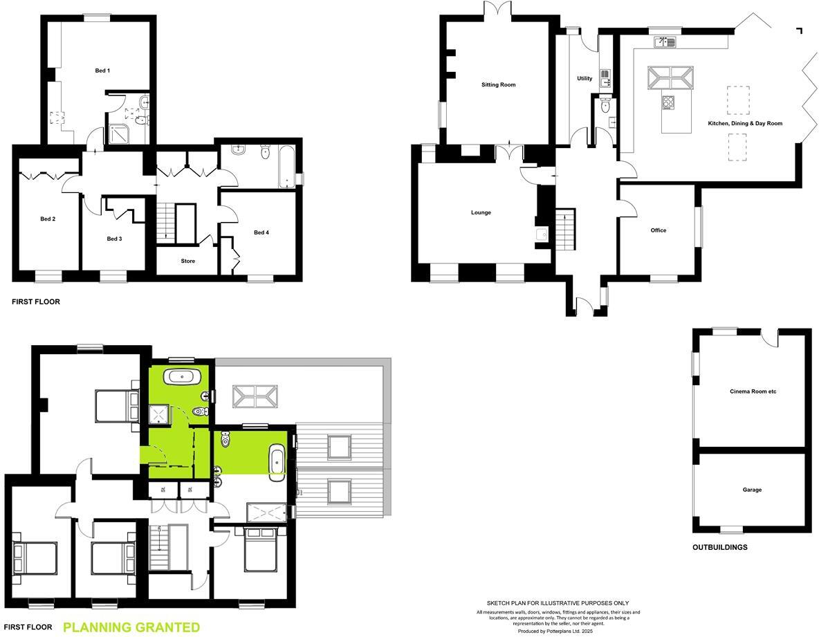
Set on just over an acre with paddock and productive outside entertaining areas, this substantial four-double-bedroom cottage combines period character with a large contemporary glazed extension. The heart of the house is a 7.6m x 6.0m chef’s kitchen/dining/day room with under‑floor heating, bi-fold doors and extensive glazing that frame distant grazing-land views.
Practical family spaces include two formal reception rooms, a large office, utility/boot room, garage and an adjoining workshop/cinema room. The generous courtyard provides multi-vehicle parking behind gated access, and the paddock offers scope for small-scale equestrian use, hobby farming or garden extension.
Notable positives include full planning permission (Feb 2025) to extend the master suite and enlarge the house bathroom, oil-fired boiler new in 2022, and very low local crime in an affluent rural setting with fast broadband and excellent mobile signal. Equally, buyers should note running and improvement costs: heating is oil-fired (not a community supply), the property has cavity walls with assumed no added insulation, double glazing has unknown install dates, and council tax sits at a higher band.
This house will suit buyers seeking a spacious family base with room to grow or investors wanting a rural lifestyle proposition. The plot and permitted extension deliver clear scope to increase principal bedroom accommodation and add value, while the sizeable outbuildings and paddock support varied uses.
4 bedroom detached house for sale in Durham Road, Coatham Mundeville, Darlington, DL1 — £699,950 • 4 bed • 1 bath • 4071 ft²
4 bedroom detached house for sale in West Road, Melsonby, Richmond, DL10 — £725,000 • 4 bed • 3 bath • 2099 ft²
4 bedroom detached house for sale in Marrick, Richmond, DL11 — £625,000 • 4 bed • 3 bath • 2065 ft²
5 bedroom semi-detached house for sale in Gatherley Road, Brompton On Swale, Richmond, DL10 — £564,950 • 5 bed • 2 bath • 2626 ft²
3 bedroom village house for sale in Oaklea, Thrintoft, Northallerton, DL7 — £450,000 • 3 bed • 2 bath • 1572 ft²
4 bedroom semi-detached house for sale in Lanehead Cottages, Richmond, DL11 — £475,000 • 4 bed • 2 bath • 1544 ft²






































































































































