Renovated rural retreat with stables, views and development potential.
- Four bedrooms in a newly renovated stone cottage
- Far-reaching countryside views within National Park and AONB
- Biomass boiler (bulk wood pellets) and private water filtration
- Off-street parking; three stables and powered tack room
- Previous planning permission for garage and conservatory
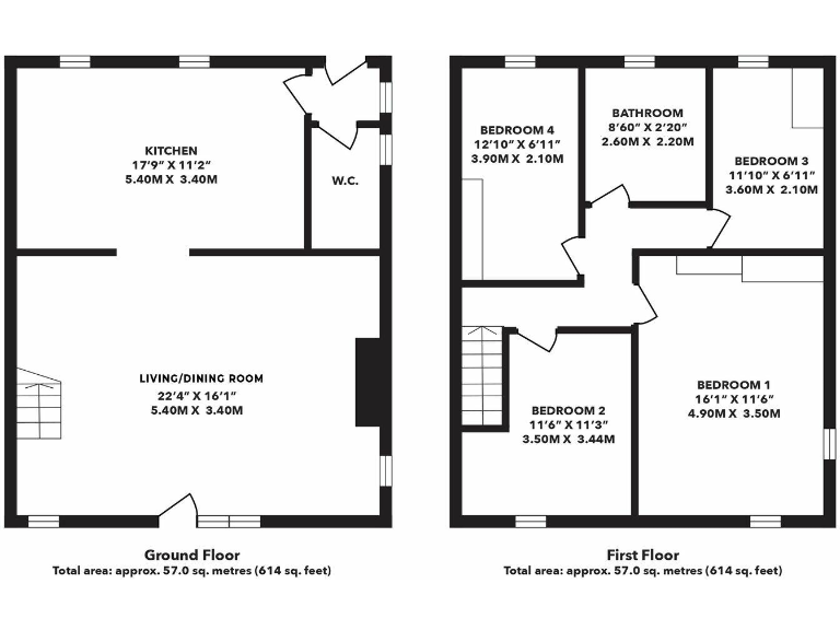
- Single bathroom for four bedrooms; may limit a larger family
- Very slow broadband and average mobile signal (rural constraint)
- EPC F; drainage to septic tank and potential insulation needs
Hott Cottage is a recently renovated stone country cottage set in the North Tyne valley, with far-reaching views over fields and bridleways. The spacious living/dining room and farmhouse-style kitchen retain period beams and a cosy inglenook with a multi-fuel stove, while four bedrooms provide flexible family accommodation. The property sits within Northumberland National Park and offers a landscaped low-maintenance rear garden, lawned front garden and multiple seating areas to enjoy the outlook.
Practical systems suit rural living: biomass boiler with bulk wood pellet fuel, private water supply with filtration, and mains electricity. There is off-road parking, three stable boxes plus a tack room with power, and previous planning permission for a double garage and conservatory — useful for buyers wanting to extend or create a home office or ancillary space (subject to approvals).
Be realistic about rural constraints: broadband is very slow and mobile signal only average, the house drains to a septic tank and the EPC is F. The property can be ideal for those seeking a countryside base, outdoor lifestyle or development potential, but it may need ongoing upkeep of rural services and consideration of insulation and energy improvements.
This cottage will suit buyers who value peace, views and character over town conveniences — families, hobby equestrians or buyers seeking a countryside retreat with scope to adapt the outbuildings and garden.
3 bedroom hotel for sale in Stannersburn, Hexham, Northumberland, NE48 — £340,000 • 3 bed • 3 bath • 1104 ft²
3 bedroom detached house for sale in Stannersburn, Hexham, Northumberland, NE48 — £340,000 • 3 bed • 3 bath • 1104 ft²
3 bedroom farm house for sale in Greenhaugh Farm, Greenhaugh, Hexham, Northumberland, NE48 — £1,175,000 • 3 bed • 2 bath • 1955 ft²
4 bedroom end of terrace house for sale in Hopefoot Cottage, Otterburn, Newcastle Upon Tyne, NE19 — £185,000 • 4 bed • 2 bath • 1916 ft²
2 bedroom bungalow for sale in Honeysuckle Cottage, Wark, Hexham, Northumberland, NE48 — £180,000 • 2 bed • 1 bath • 943 ft²
2 bedroom end of terrace house for sale in Rochester, Newcastle Upon Tyne, NE19 — £220,000 • 2 bed • 1 bath • 1263 ft²


























































































