Affordable entry-level home near Lancaster amenities and transport links.
Allocated off-street parking and electric car charging point
Private turfed rear garden, low-maintenance outdoor space
Open-plan kitchen/diner and lounge with French doors
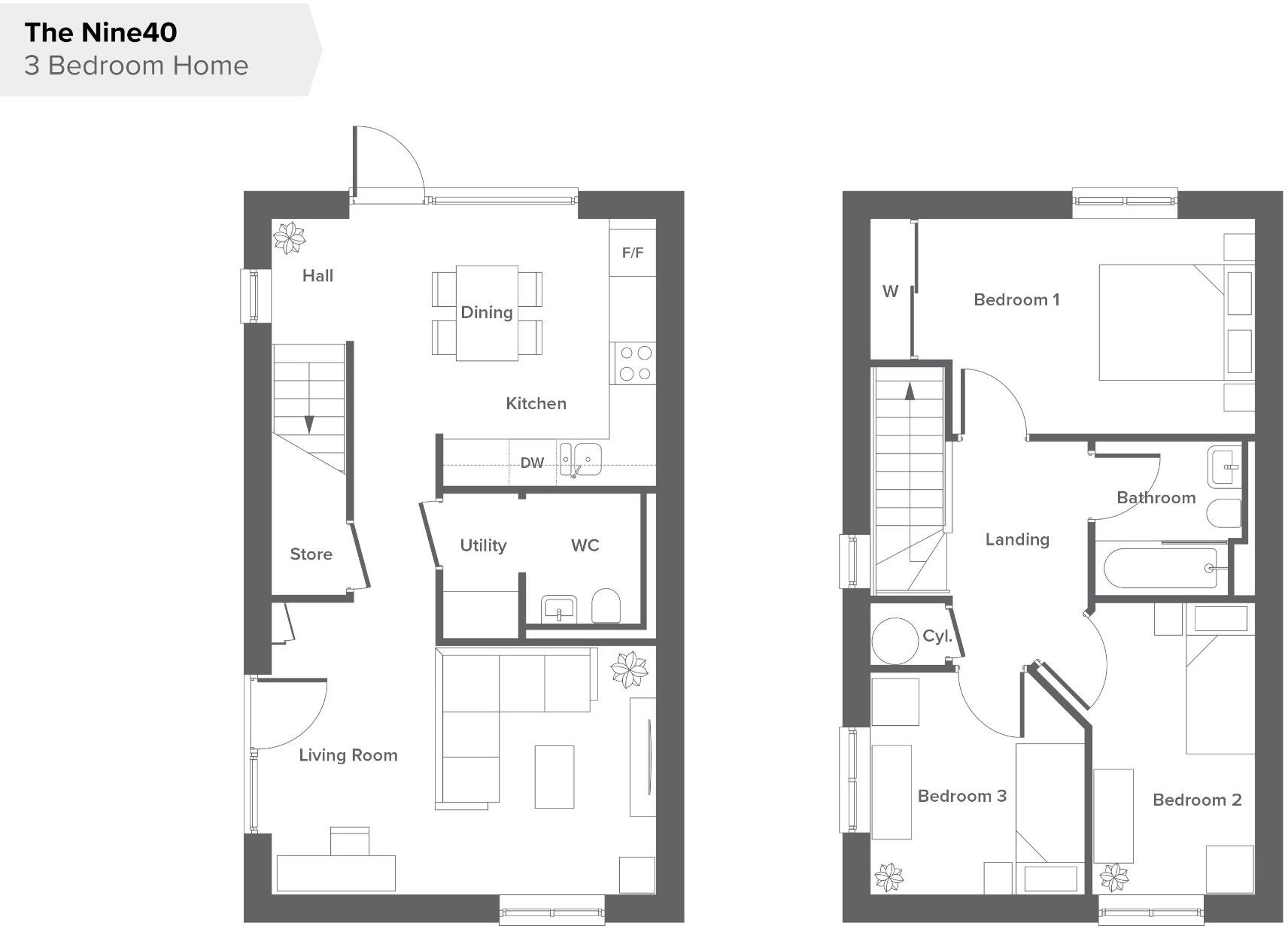
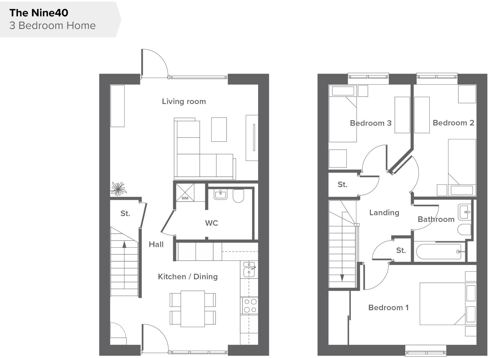
Three bedrooms served by a single modern family bathroom
Shared ownership example: 25% share from £71,875
Approximate rent at 25% share ~£494.14 pcm; ongoing costs apply
Service charge noted £362.52 (below average) and additional fees
Images are CGI; final specification and layouts may differ
This three-bedroom new-build terrace on Scotforth Road offers a straightforward, low-maintenance home in a desirable Lancaster suburb. The shared ownership route makes entry more affordable, with example 25% share shown at £71,875 and a competitive transport link for commuters. Allocated off-street parking, an electric car charging point and a private turfed rear garden add practical everyday benefits.
Inside, the layout is sensible for first-time buyers or young families: an open-plan kitchen/diner, a lounge with French doors to the garden, a downstairs WC and three bedrooms served by a single modern family bathroom. Contemporary fitted kitchens and bathrooms mean there is little immediate renovation work required, helping move-in readiness and reduced initial costs.
Buyers should note this is a shared ownership property: ongoing rent (~£494 pcm at a 25% share), a below-average service charge (£362.52 stated) and additional management/insurance costs apply. Images provided are CGIs and some specification or external layouts may differ from the finished home. Also, there is only one bathroom which may be limiting for larger households.
Overall, this property suits first-time purchasers seeking an affordable route onto the ladder in a quiet, well-connected area with good local schools, green spaces and commuter links. Consider the ongoing shared-ownership costs and the single bathroom when assessing long-term suitability.
3 bedroom terraced house for sale in Scotforth Road,
Lancaster,
LA1 4NU, LA1 — £146,250 • 3 bed • 1 bath • 940 ft²
2 bedroom terraced house for sale in Scotforth Road,
Lancaster,
LA1 4NU, LA1 — £176,250 • 2 bed • 1 bath • 775 ft²
2 bedroom terraced house for sale in Scotforth Road,
Lancaster,
LA1 4NU, LA1 — £58,750 • 2 bed • 1 bath • 775 ft²
3 bedroom terraced house for sale in Scotforth Road,
Lancaster,
LA1 4NU, LA1 — £219,375 • 3 bed • 1 bath • 940 ft²
3 bedroom terraced house for sale in Scotforth Road,
Lancaster,
LA1 4NU, LA1 — £243,750 • 3 bed • 1 bath • 1159 ft²
2 bedroom terraced house for sale in Scotforth Road,
Lancaster,
LA1 4NU, LA1 — £117,500 • 2 bed • 1 bath • 775 ft²






































































