Shared-ownership new build in a quiet, well-connected suburb for first-time buyers.
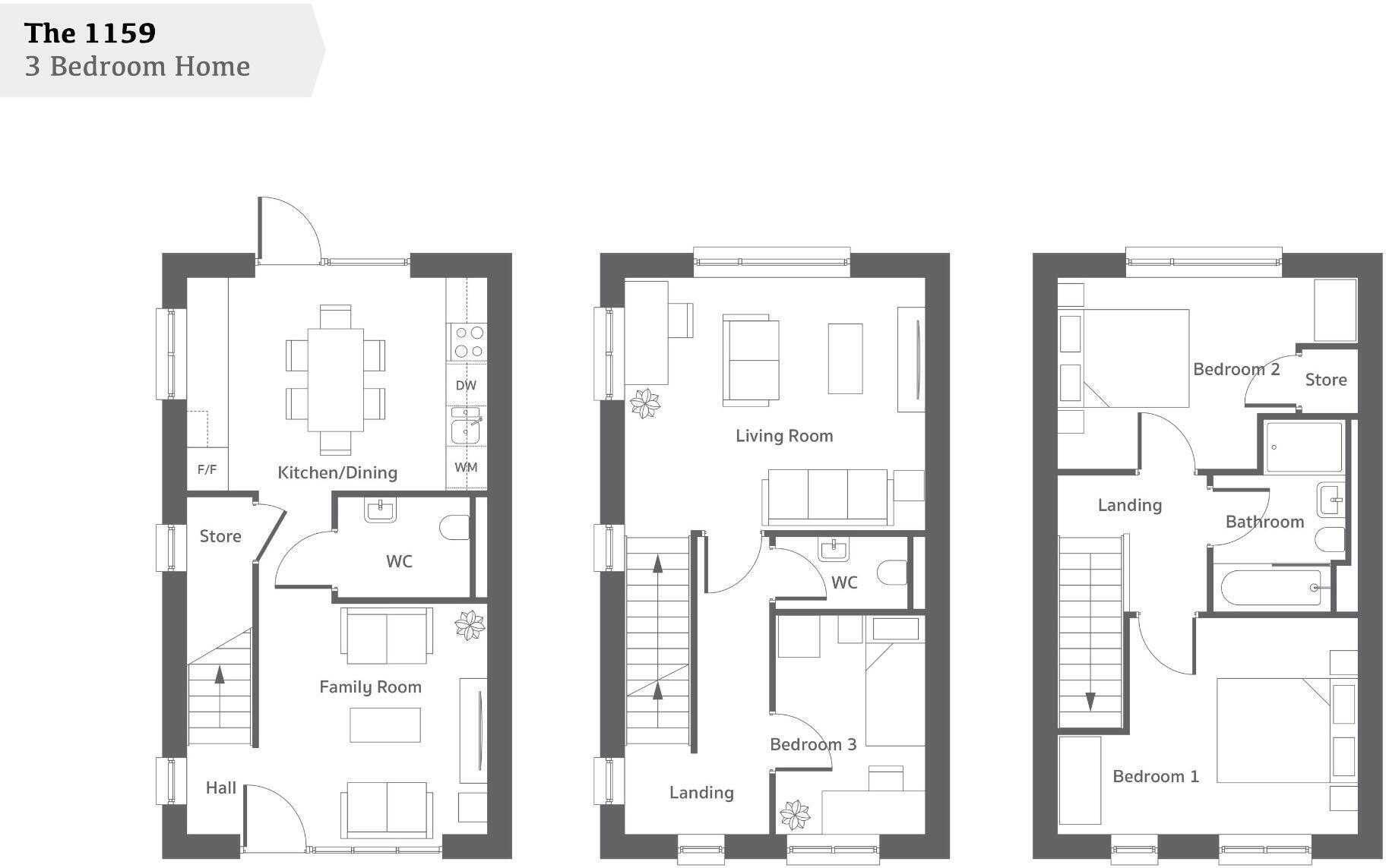
3 bedrooms across three floors with modern family bathroom
Shared Ownership: 75% share example from £243,750
Service charge £194.52pcm plus building insurance and management fees
Allocated off-street parking and electric car charging point
Private turfed rear garden — modest size, low maintenance
One downstairs WC; single family bathroom only
New-build finish — move-in ready but limited immediate room enlargement potential
Close to good schools, green spaces and strong transport links
A bright, new three-bedroom terraced home in desirable south Lancaster, offered through Shared Ownership to help first-time buyers step on the ladder. The house is arranged over multiple floors with a kitchen/diner, a convenient downstairs WC, and three upstairs bedrooms served by a contemporary family bathroom. Contemporary finishes and low-maintenance new build construction make this an easy move-in option.
Practical features include allocated off-street parking, an electric car charging point and a private turfed rear garden. The property sits close to good schools, local shops and green spaces, with strong transport links across the North West — attractive for commuters and young families.
Shared Ownership reduces the upfront cost: a 75% share is listed from £243,750 (full value example £325,000) with an indicative monthly rent of £186.20. Buyers should note ongoing charges: a service charge of £194.52pcm (below average) plus building insurance and small estate management fees; these add to monthly costs and are important when budgeting.
This home suits buyers seeking a modern, low-maintenance base in a quiet, affluent suburban area. It is new-build stock with standard room sizes and modern fittings; there is some scope to personalise finishes but no major refurbishment is required.
3 bedroom terraced house for sale in Scotforth Road,
Lancaster,
LA1 4NU, LA1 — £81,250 • 3 bed • 1 bath • 1159 ft²
3 bedroom terraced house for sale in Scotforth Road,
Lancaster,
LA1 4NU, LA1 — £162,500 • 3 bed • 1 bath • 1159 ft²
2 bedroom terraced house for sale in Scotforth Road,
Lancaster,
LA1 4NU, LA1 — £117,500 • 2 bed • 1 bath • 775 ft²
3 bedroom terraced house for sale in Scotforth Road,
Lancaster,
LA1 4NU, LA1 — £219,375 • 3 bed • 1 bath • 940 ft²
3 bedroom terraced house for sale in Scotforth Road,
Lancaster,
LA1 4NU, LA1 — £71,875 • 3 bed • 1 bath • 940 ft²
2 bedroom terraced house for sale in Scotforth Road,
Lancaster,
LA1 4NU, LA1 — £58,750 • 2 bed • 1 bath • 775 ft²










































