Flexible three-floor living moments from the Thames and town amenities.
Prime central Wallingford location, short walk to River Thames and town amenities
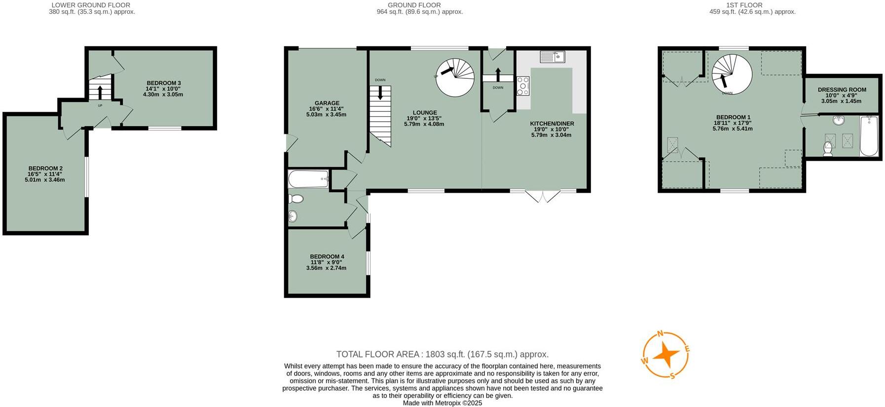
Open-plan lounge, dining area and fitted kitchen with French doors
Principal bedroom with en-suite bathroom and separate dressing room
Three further double bedrooms across lower ground and ground floors
Landscaped, low-maintenance rear courtyard garden
Integral garage with internal access and electric roller door
Small plot with limited private outside space
Local crime above average; council tax band described as expensive
Set in the heart of Wallingford, this detached town-centre home offers flexible family living across three floors. The ground floor’s open-plan lounge, dining area and well-equipped kitchen create a bright, sociable hub with French doors to a private courtyard. The integral garage with internal access and electric roller door adds practical everyday convenience.
The principal bedroom occupies the first floor and benefits from a generous en-suite and a separate dressing room. Two double bedrooms on the lower ground floor and a fourth bedroom on the ground floor provide versatile sleeping arrangements for children, guests or a home office. The landscaped courtyard is low-maintenance and sunny in the afternoons.
Practical details to note: the plot is compact and the property sits close to the town centre and river paths, which is ideal for amenities but means limited external grounds. Local crime levels are above average and council tax is described as expensive. Broadband and mobile signal are excellent; heating is mains gas with boiler and radiators.
This home will suit families who prioritise town-centre living, riverside walks and flexible internal space rather than large gardens. There is scope to update or personalise internal finishes to match modern tastes, making it a comfortable long-term family base in a desirable, well-served market town.
3 bedroom terraced house for sale in High Street, Wallingford, OX10 — £500,000 • 3 bed • 2 bath • 1008 ft²
4 bedroom detached house for sale in Newnham Green, Crowmarsh Gifford, OX10 — £500,000 • 4 bed • 2 bath • 1002 ft²
2 bedroom apartment for sale in Wood Street, Wallingford, OX10 — £280,000 • 2 bed • 1 bath • 560 ft²
3 bedroom end of terrace house for sale in Sovereign Place, Wallingford, OX10 — £450,000 • 3 bed • 2 bath • 1234 ft²
2 bedroom house for sale in Wood Street, Wallingford, OX10 — £375,000 • 2 bed • 1 bath • 851 ft²
3 bedroom semi-detached house for sale in St. Leonards Square, Wallingford, OX10 — £665,000 • 3 bed • 3 bath • 1719 ft²






















































































