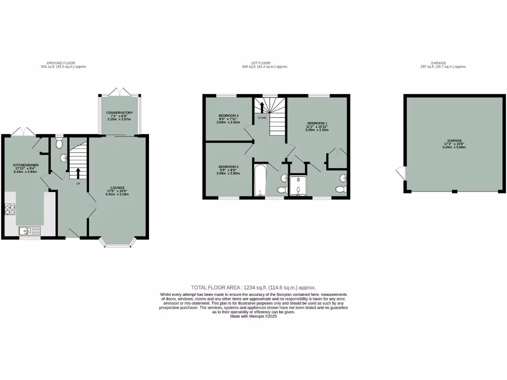
**Standout Features:**
- Three-bedroom semi-detached family home
- West-facing enclosed rear garden perfect for afternoon sun
- Spacious kitchen/diner, lounge, and conservatory
- En-suite to master bedroom, plus family bathroom and cloakroom
- Off-street parking for four vehicles, plus a double garage
- Walking distance to Wallingford town centre
This inviting three-bedroom family home in the highly desirable OX10 postcode offers ample living space and a prime location just a stroll away from the historic town centre of Wallingford. The ground floor welcomes you with a modern kitchen/diner, a bright lounge, and a charming conservatory that leads to a west-facing garden—ideal for enjoying sunny afternoons. Upstairs, the master suite boasts an en-suite, while two additional bedrooms share a well-appointed modern bathroom.
For families, the property offers a friendly suburban feel with excellent local amenities and schools rated 'Good' by Ofsted. With off-street parking for four cars and a double garage, you'll have no shortage of space for vehicles and storage. Although the home is in good condition, it presents modest renovation potential to personalize it to your tastes.
Experience comfort, security, and spacious living—properties like this don’t stay on the market long! Schedule your viewing today to discover your future family oasis.
4 bedroom detached house for sale in Newnham Green, Crowmarsh Gifford, OX10 — £500,000 • 4 bed • 2 bath • 1002 ft²
3 bedroom semi-detached house for sale in Charter Way, Wallingford, OX10 — £450,000 • 3 bed • 1 bath • 1044 ft²
3 bedroom semi-detached house for sale in Rowland Close, Wallingford, OX10 — £425,000 • 3 bed • 1 bath • 1098 ft²
3 bedroom end of terrace house for sale in Habitat Way,Wallingford,OX10 9FT, OX10 — £485,000 • 3 bed • 2 bath • 952 ft²
3 bedroom detached house for sale in Brookmead Drive, Wallingford, OX10 — £575,000 • 3 bed • 1 bath • 887 ft²
3 bedroom semi-detached house for sale in Wilding Road, Wallingford, OX10 — £425,000 • 3 bed • 1 bath • 1132 ft²














































