EX4 4BP - 2 bedroom house for sale in Bonhay Road, Exeter, EX4

View on Property Piper

2 bedroom house for sale in Bonhay Road, Exeter, EX4

Summary - 33, Bonhay Road, EXETER EX4 4BP

2 bed 1 bath House

Two-bed Victorian terrace for full modernisation, strong rental location..
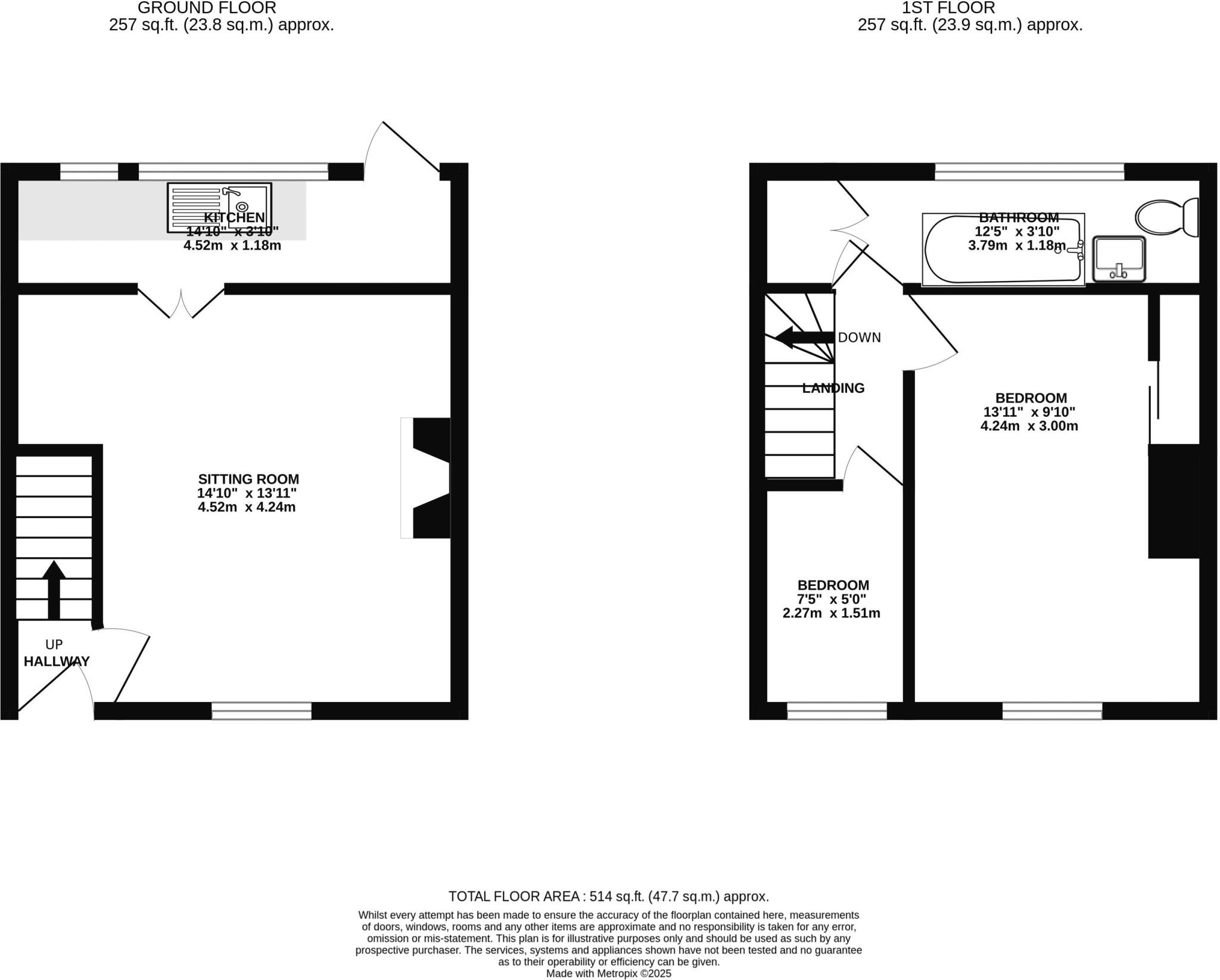
Freehold Victorian mid-terrace, two bedrooms, circa 514 sq ft
A compact two-bedroom Victorian terrace in central Exeter offering clear renovation potential and immediate rental appeal. The house is freehold with a small rear courtyard and an additional garden across the road — practical assets for a city-centre property. Fast broadband and excellent mobile signal suit student or professional tenants.

This property requires full modernisation: dated interiors, evidence of damp/mould in the living room, and general refurbishment throughout. There is a medium flood risk and the area records very high crime levels; both are material factors for future use and insurance costs. Room sizes are modest (total c. 514 sq ft) so planning major extensions is likely limited.

Positioned in a cosmopolitan, student-and-professional neighbourhood close to the city centre and river, the house is attractive as an investor buy-to-let or a project for an experienced renovator. Cheap council tax reduces running costs, and the mix of local amenities, transport links and nearby schools supports rental demand.

Realistic buyers should budget for comprehensive works and factor in security and insurance implications from the high crime rating. For investors, the location and freehold tenure provide straightforward rental upside once refurbished; for owner-occupiers, expect a hands-on, value-led restoration project.

Property Details

Brochure Descriptions

Image Descriptions

Floorplan Description

Rooms

Textual Property Features

Target Audience

AI Tags

Detected Visual Features

Nearby Schools

Nearest Bars And Restaurants

,,,,}

Nearest General Shops

,,}

Nearest Grocery shops

,,}

Nearest Supermarkets

,,}

Nearest Religious buildings

,,}

Nearest Medical buildings

,,,}

Nearest Airports

}

Nearest Leisure Facilities

,,,,}

Nearest Tourist attractions

,,}

Nearest Train stations

,,,,}

Nearest Bus stations and stops

,,,,}

Nearest Hotels

,,}

Tags

Local Market Stats

AirBnB Data

Similar Properties

Meta

High Res Images

Compatible Images

Low res Images

Thumbnails

Raw Images

High Res Floorplan Images

Compatible Floorplan Images

Low res Floorplan Images

FloorplanImages Thumbnail

Raw Floorplan Images