Large garden and parking offer strong redevelopment potential subject to planning.
Detached Victorian mixed‑use building with commercial and residential elements
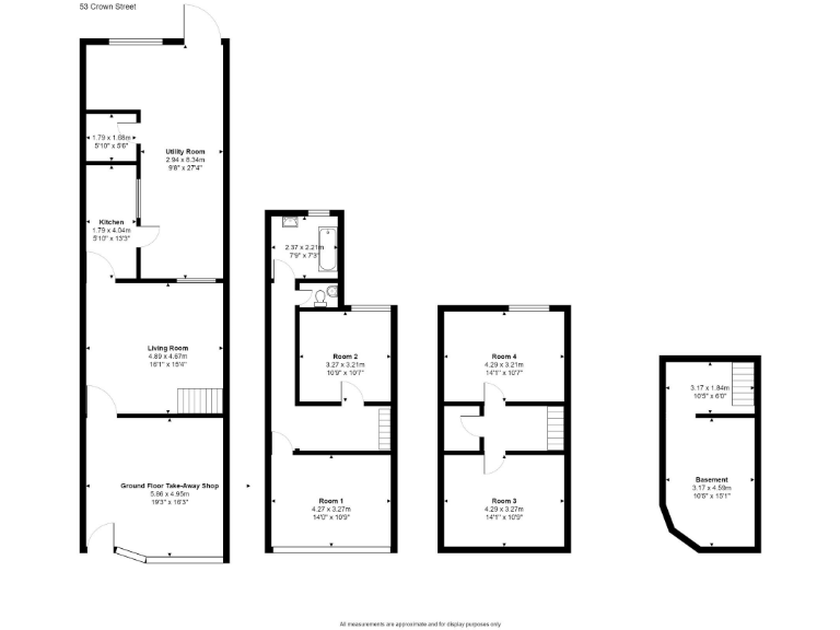
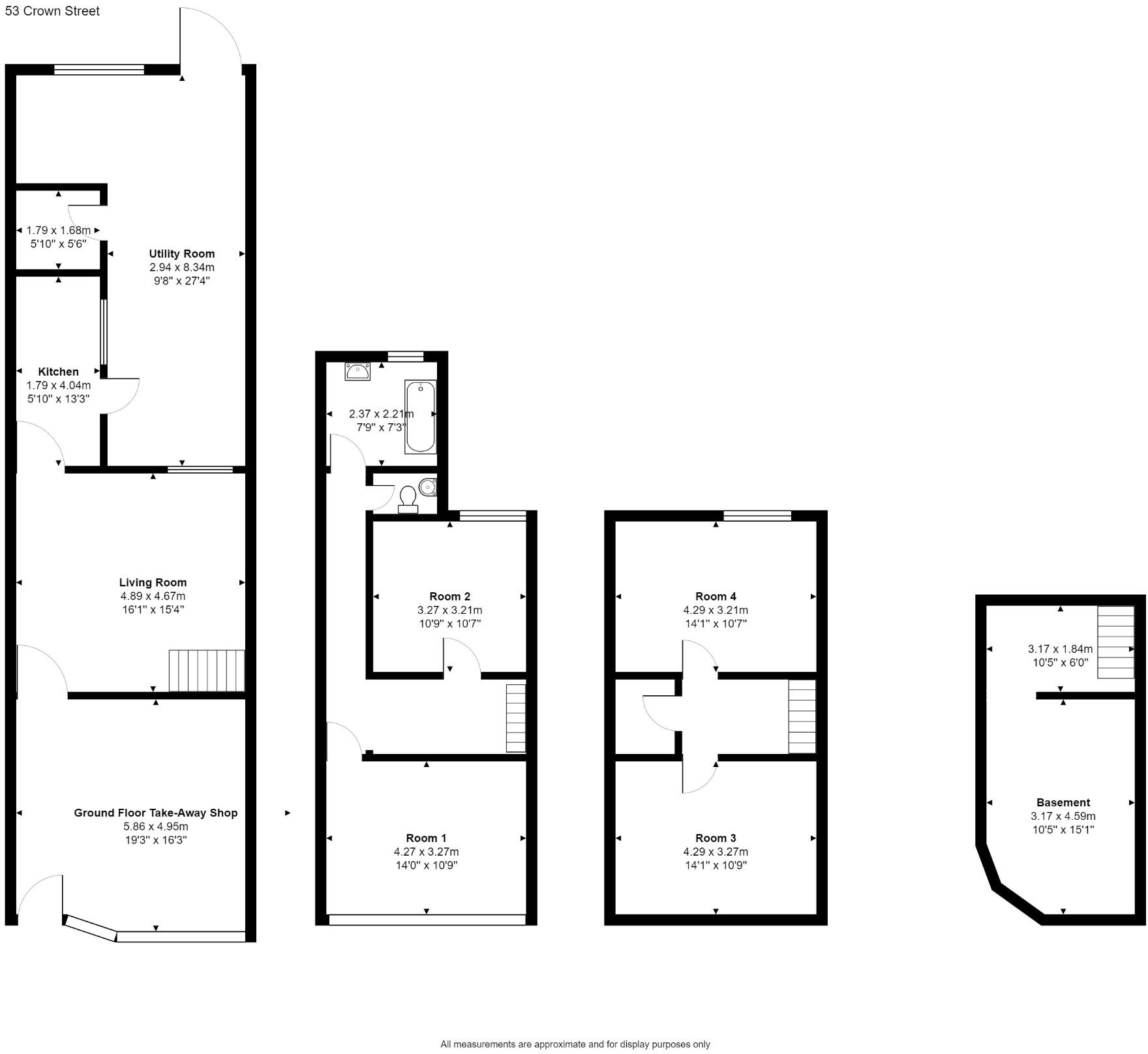
This detached Victorian mixed‑use building on Crown Street combines a ground‑floor fish and chip shop with spacious two‑floor residential accommodation above. The shop area includes legacy catering fixtures, a semi‑basement prep area, and a deep forecourt with parking for two cars. A new roof was fitted in July 2021.
The standout asset is the very large rear garden (circa 5,900 sq.ft.) and side driveway, offering clear scope for alternative development or rear extension, subject to planning permission. The property is on a busy main road with strong local catchment from nearby residential and commercial areas in Reading RG1.
The building has not traded for about eight years and will need intrusive refurbishment to reinstate a food business or convert to more intensive residential use. EPC rating E (123) indicates energy and fabric improvements are likely. The semi‑basement has limited headroom and should be assessed before change of use.
For investors or developers the opportunity is practical: low current rateable value, long single‑owner history, off‑street parking and a large rear plot. Any redevelopment or change of use is subject to planning permission; budget and timings should allow for that process.
Commercial property for sale in 156-158 Friar Street, Reading, Berkshire, RG1 — £1,800,000 • 1 bed • 1 bath • 4349 ft²
High street retail property for sale in Southampton Street, Reading, Berkshire, RG1 — £499,950 • 1 bed • 1 bath • 1402 ft²
Pub for sale in LA-524607 - Blagrave Arms, 35 Blagrave Street, Reading RG1 1PW, RG1 — £695,000 • 1 bed • 1 bath
Terraced house for sale in 16 & 16a Norcot Road, Reading, Berkshire, RG30 — £350,000 • 1 bed • 1 bath • 1900 ft²
2 bedroom apartment for sale in Hemdean Road, Caversham, Reading, Berkshire, RG4 — £350,000 • 2 bed • 2 bath • 1088 ft²
5 bedroom mixed use property for sale in Alma Street, Reading, Berkshire, RG30 — £875,000 • 5 bed • 1 bath • 3500 ft²














































