Steps from York Minster, ideal for growing families seeking flexible urban living.
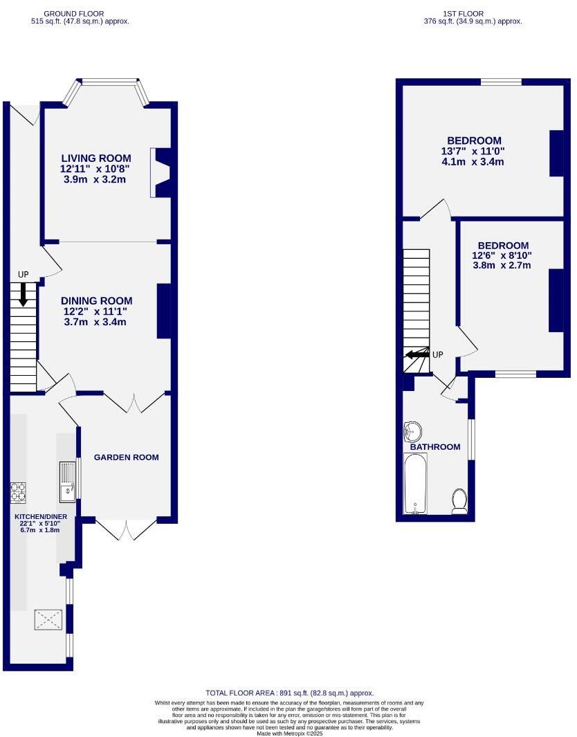
- Large open-plan living and dining room
- Modern kitchen with extended breakfast area
- Converted attic offers potential third bedroom (approvals needed)
- Private rear yard with artificial grass and patio
- Freehold, easy walking distance to York city centre
- EPC rating D; thermal improvement likely required
- Small plot and Victorian solid walls may need upgrades
- Council Tax Band B; affordable running costs
Set just off Haxby Road and within comfortable walking distance of York Minster and the city centre, this late-Victorian mid-terrace offers practical family living over two storeys. The ground floor is arranged as a large open-plan living and dining space leading to a modern kitchen with an extended breakfast area — a bright, flexible hub for daily life.
Upstairs are two well-proportioned bedrooms and a family bathroom, while the converted attic currently used as a music room provides genuine potential for a third bedroom subject to planning and building-regulation approval. Outside, a low-maintenance rear yard with artificial grass and a paved patio gives private outdoor space without heavy upkeep.
The home is freehold with quick access to Monks Cross, Clifton Moor and frequent bus routes, and sits close to several well-regarded schools, making it a practical choice for growing families or couples who want city convenience. Buyers should note the property’s EPC rating of D and the likely absence of wall insulation in solid brick walls, which may mean further works to improve thermal performance and running costs.
2 bedroom terraced house for sale in Abbey Street, Clifton Green, York, YO30 — £425,000 • 2 bed • 1 bath • 1034 ft²
2 bedroom terraced house for sale in Huntington Road, York YO31 8RD, YO31 — £425,000 • 2 bed • 1 bath • 1015 ft²
2 bedroom terraced house for sale in Scott Street, Scarcroft Road, YO23 — £365,000 • 2 bed • 1 bath • 694 ft²
2 bedroom terraced house for sale in Allan Street, York, YO30 — £210,000 • 2 bed • 1 bath • 584 ft²
4 bedroom terraced house for sale in Markham Street, Off Haxby Road, York, YO31 — £500,000 • 4 bed • 2 bath • 1003 ft²
2 bedroom terraced house for sale in Russell Street, South Bank, YO23 — £385,000 • 2 bed • 1 bath • 767 ft²






























































