Spacious period home with private gardens near Helford waters.
Grade II Listed former vicarage with extensive period character
Private south-facing gardens and grounds approaching an acre
Restored chapel, garage and separate workshop included
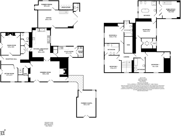
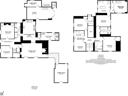
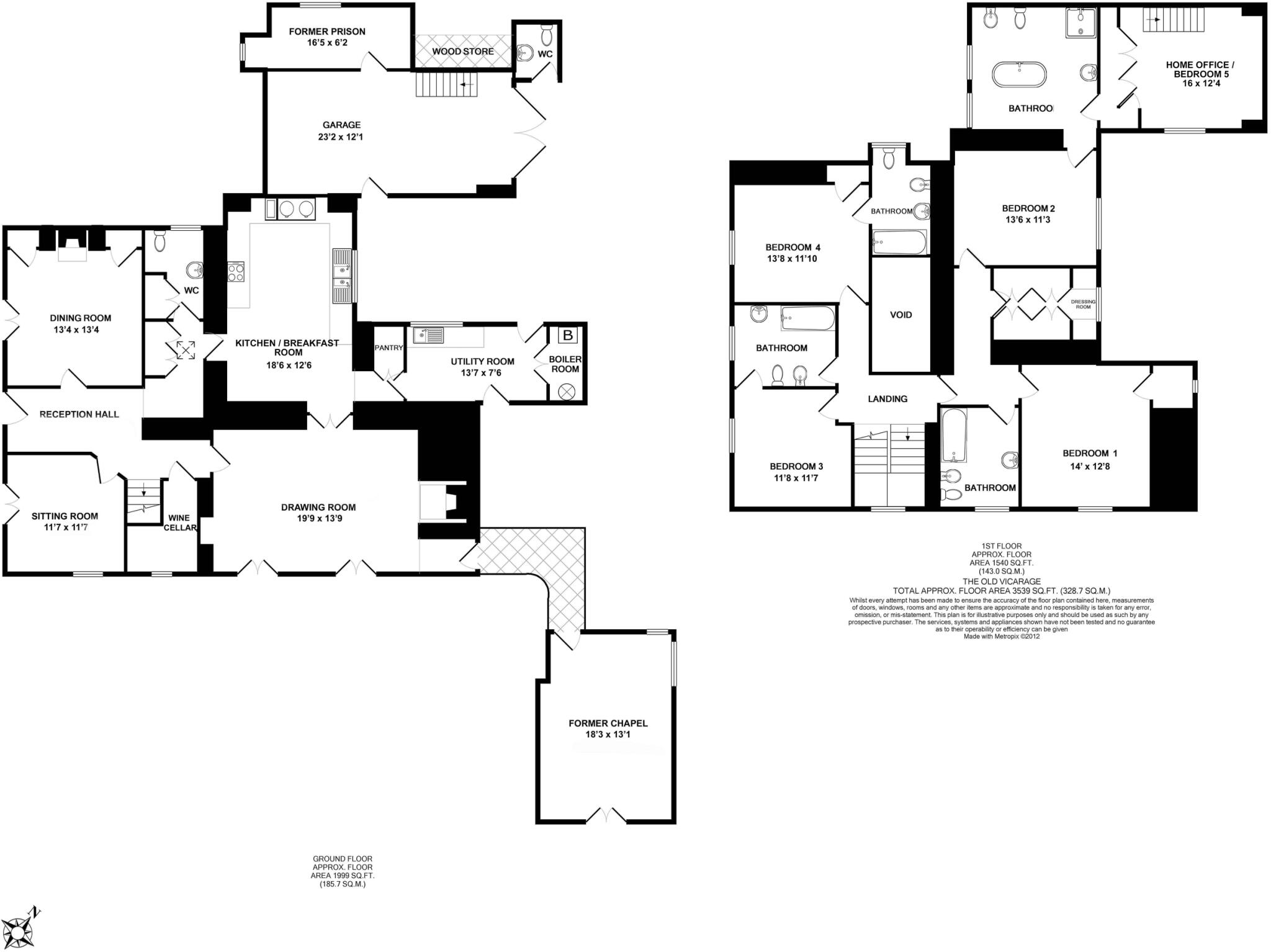
Large 4–5 bedroom, 4-bathroom accommodation (3,539 sq ft)
Less than one mile from Helford sailing waters and coastline
Listed status may restrict alterations and increase maintenance costs
Oil-fired boiler heating; double glazing fitted before 2002
Stone walls likely uninsulated — potential retrofit costs
This Grade II Listed former vicarage has been carefully restored to provide spacious, characterful accommodation across 3,539 sq ft. Set in almost an acre of private, south-facing gardens and grounds, the house benefits from countryside views and a sunny terrace ideal for family gatherings or quiet relaxation. Garaging, workshop and a restored chapel add useful ancillary space and versatility.
The accommodation includes four to five bedrooms and four bathrooms, arranged over multiple levels with period features, large rooms and sash windows. Modern comforts are present following recent renovation, but the listing status means alterations can be restricted and specialist maintenance may be needed. Heating is by oil boiler to radiators; double glazing was installed before 2002 and the stone walls are likely uninsulated.
Positioned in the popular village of Manaccan, the property is less than a mile from Helford sailing waters and within reach of the Lizard Peninsula’s coastline and beaches. Local amenities include a primary school, pub, shop and community facilities. Broadband is fast and mobile signal excellent, while flood risk is low — attractive for rural living but with some practical upkeep considerations.
3 bedroom detached house for sale in The Triangle, Manaccan, TR12 — £445,000 • 3 bed • 2 bath • 962 ft²
4 bedroom detached house for sale in Helston, TR13 — £495,000 • 4 bed • 2 bath • 435 ft²
4 bedroom detached house for sale in St Martin, Cornwall, TR12 — £1,000,000 • 4 bed • 3 bath • 1932 ft²
3 bedroom semi-detached house for sale in St. Austell Road, St Blazey Gate, Par PL24 — £325,000 • 3 bed • 1 bath • 1092 ft²
5 bedroom detached house for sale in Colan, Newquay, Cornwall, TR8 — £1,395,000 • 5 bed • 4 bath • 4655 ft²
4 bedroom detached house for sale in Commercial Road, St Keverne TR12 6LY, TR12 — £495,000 • 4 bed • 2 bath • 1103 ft²






































































































