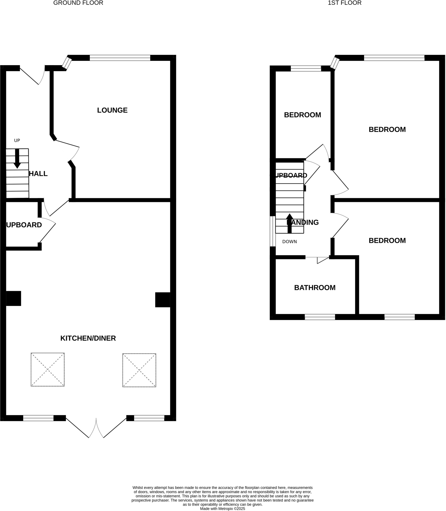
**Standout Features:**
- Extended semi-detached house with three bedrooms
- Spacious, modern kitchen diner family room with skylights and garden access
- Off-road parking for two vehicles
- Private, low-maintenance rear garden with patio
- Freehold status with Council Tax Band B
- Potential for further development (planning permission reference 039374)
**Concise Property Summary:**
Step into this inviting extended semi-detached home, perfect for families or prospective investors seeking rental potential. The well-presented interior includes a generous, contemporary kitchen diner family room flooded with natural light from skylights and double French doors leading to a secluded rear garden—ideal for outdoor gatherings. Three bedrooms and a stylish modern shower room ensure comfort, while off-road parking adds convenience. Although crime rates in the area are above average, the charm of this family-friendly neighborhood is reinforced by access to reputable schools and amenities nearby.
This property is an excellent opportunity to secure a freehold with room for renovation, making it a valuable investment in a transitioning urban community. Don't miss out—discover your family's new sanctuary today!
3 bedroom semi-detached house for sale in Portland Drive, Nuneaton, CV10 — £260,000 • 3 bed • 1 bath • 1104 ft²
3 bedroom semi-detached house for sale in Alderbrook Drive, Whitestone, Nuneaton, CV11 6PL, CV11 — £277,000 • 3 bed • 1 bath • 1068 ft²
3 bedroom semi-detached house for sale in Newdigate Road, CV12 — £235,000 • 3 bed • 1 bath • 738 ft²
3 bedroom semi-detached house for sale in Home Park Road, Nuneaton, Warwickshire, CV11 — £260,000 • 3 bed • 1 bath • 1001 ft²
3 bedroom semi-detached house for sale in Ansley Road, Nuneaton, CV10 — £289,000 • 3 bed • 1 bath • 914 ft²
3 bedroom semi-detached house for sale in Sudeley Road, Nuneaton, CV10 7AJ, CV10 — £215,000 • 3 bed • 2 bath • 1250 ft²


































































