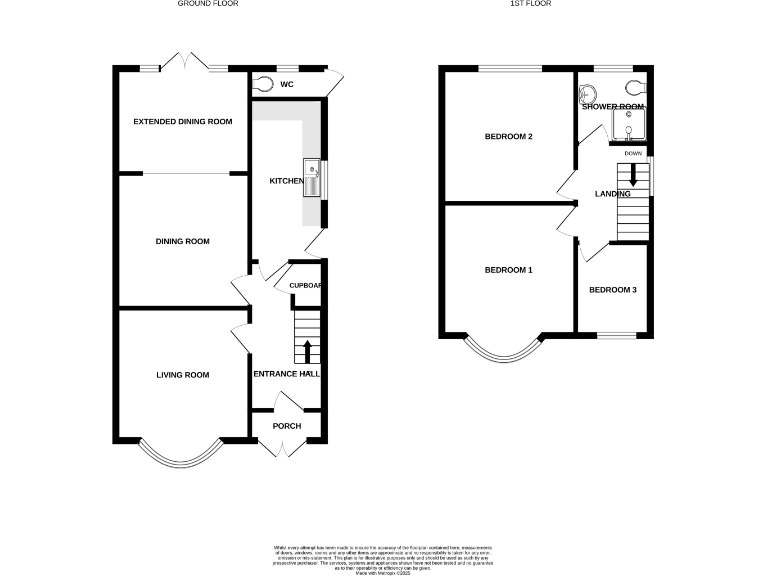
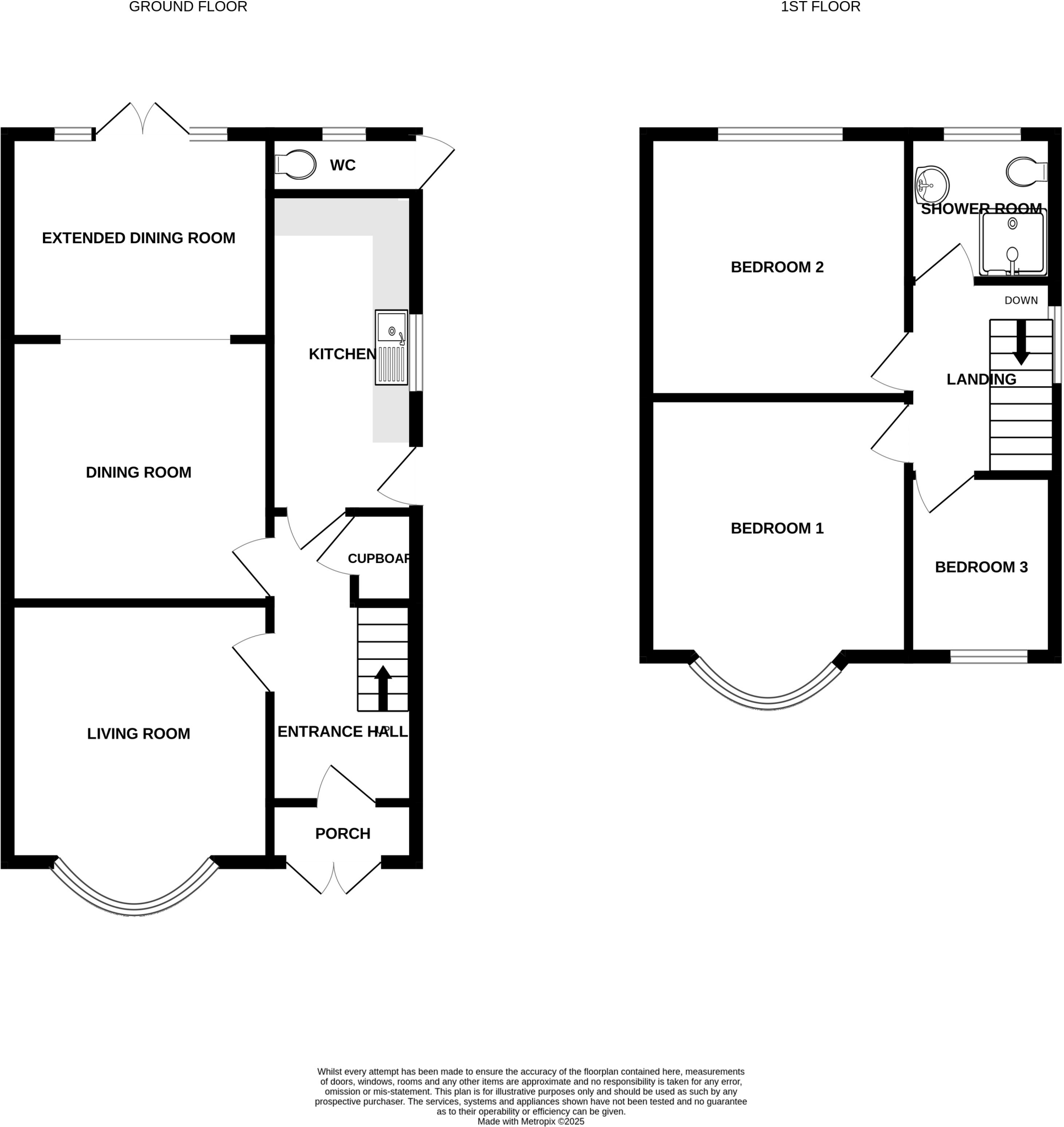
**Standout Features:**
- Extended semi-detached home
- Three bedrooms and a modern shower room
- Spacious living room and large dining area
- Generous rear garden and off-road parking
- Offered with no onward chain
- Council Tax Band B; EPC Rating D
This extended semi-detached home offers an excellent opportunity for families seeking both comfort and convenience. Boasting a charming Art Deco facade with distinctive bay windows, the property features a bright living room and an expansive extended dining area, ideal for family gatherings. The kitchen comes fully equipped, while the three bedrooms provide ample space for relaxation. With a generous rear garden perfect for outdoor activities, and a front drive ensuring convenient off-road parking, this property caters to modern family living.
While the house is well-maintained, potential buyers should note the absence of insulation and confirm the operational status of the utilities, as not all systems have been tested. Located in a friendly neighborhood with access to reputable schools, local amenities, and excellent transport links, this home presents an inviting blend of comfort and opportunity. Act quickly to secure this inviting family residence with no onward chain; opportunities like this are rare to come by!
2 bedroom semi-detached house for sale in Nuneaton Road, Bulkington, Bedworth, CV12 — £250,000 • 2 bed • 1 bath • 959 ft²
3 bedroom semi-detached house for sale in Ansley Road, Nuneaton, CV10 — £289,000 • 3 bed • 1 bath • 914 ft²
3 bedroom semi-detached house for sale in Heath End Road, Nuneaton, CV10 — £225,000 • 3 bed • 1 bath • 1293 ft²
3 bedroom semi-detached house for sale in Trinity Walk, Attleborough , Nuneaton , CV11 — £245,000 • 3 bed • 1 bath • 880 ft²
2 bedroom semi-detached house for sale in Girtin Close , Bedworth , CV12 — £215,000 • 2 bed • 1 bath • 589 ft²
3 bedroom semi-detached house for sale in Portland Drive, Nuneaton, CV10 — £260,000 • 3 bed • 1 bath • 1104 ft²






























































