Create a spacious country home on 9.38 acres, minutes from Cheltenham.
Grade II listed barn with planning consent for four-bedroom home
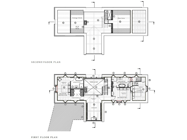
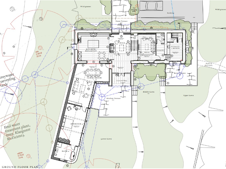
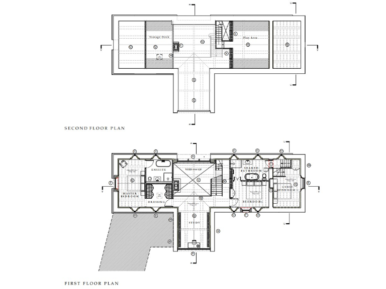
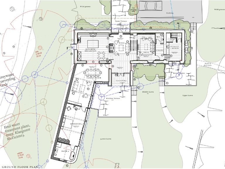
Shewell Hill Barn is a substantial Grade II listed barn with planning consent to create a four-bedroom family home of just over 4,000 sq ft. Set at the end of a private half-mile drive, the site sits tucked into the hillside with far-reaching Cotswold views across about 9.38 acres of land. Electricity is already on site and planning permission (Tewkesbury Borough Council ref 22/00495/LBC) has been granted for the conversion.
The plot will particularly suit buyers seeking space, privacy and the ability to shape a large rural home close to Cheltenham and the North Cotswolds. Local amenities include village shops and pubs in nearby Guiting Power and broader services in Winchcombe and Bourton-on-the-Water; Cheltenham is around 15 minutes’ drive for schools, shopping and cultural events.
Important practical points: the building is listed, which will restrict alterations and may complicate works and approvals. The barn is in a semi-derelict, overgrown state and will require substantial conversion and finishing; budget and specialist contractors for listed buildings should be anticipated. Broadband is very slow and mobile signal is average; this is a rural site and may not suit buyers needing fast connectivity.
Other considerations: the property sits in a hamlet/isolated location with medium flood risk recorded for the area and average local crime levels. Off-street parking is available. For those looking for a generous plot and the opportunity to create a distinctive country residence, this offers rare scale and setting, but it demands time, planning and listed-building expertise to realise its potential.
3 bedroom detached house for sale in Clapton-on-the-Hill, Cheltenham, Gloucestershire, GL54 — £875,000 • 3 bed • 2 bath • 1519 ft²
Plot for sale in Taynton, GL19 — £595,000 • 1 bed • 1 bath • 8000 ft²
3 bedroom detached house for sale in Calves Hill, Chedworth, Cheltenham, Gloucestershire, GL54 — £975,000 • 3 bed • 1 bath • 1625 ft²
5 bedroom country house for sale in Naunton, Gloucestershire, GL54 — £2,000,000 • 5 bed • 4 bath • 4824 ft²
4 bedroom barn conversion for sale in Hayden Lane, Staverton, Cheltenham, GL51 — £895,000 • 4 bed • 4 bath • 2455 ft²
5 bedroom detached house for sale in North Cerney, Cirencester, Gloucestershire, GL7 — £800,000 • 5 bed • 5 bath • 4973 ft²


























































































