Spacious period family home with barn and gardens, sold via auction.
- Grade II listed Georgian townhouse with strong period features
- Restored by Preservation Trust in 2014; well presented throughout
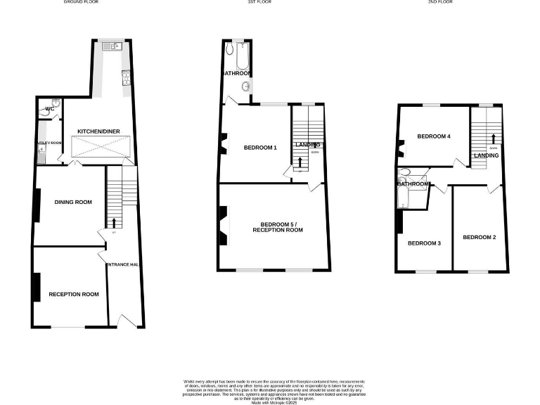
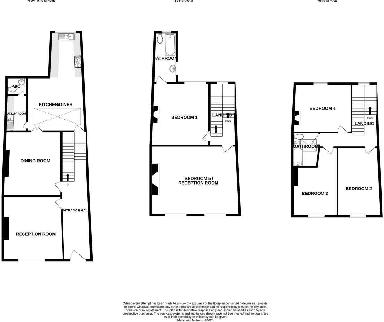
- Five spacious bedrooms across three storeys; two reception rooms
- Large kitchen/diner, utility, cloakroom and practical family layout
- Two‑storey barn to rear with workshop/studio potential
- Sold at auction (starting bid £270,000) — sale terms apply
- Only two bathrooms for five bedrooms; may need modernisation
- Listed status limits alterations; assumed solid brick walls lack insulation
This Grade II listed Georgian townhouse on London Road combines restored period detail with generous family space. High ceilings, sash windows, original coving and a striking return balustrade staircase give the house strong character, while a large kitchen/diner, two reception rooms and five spacious bedrooms suit busy family life.
Externally the plot includes small front and larger walled rear gardens, plus a two‑storey barn with rear access — useful as storage, workshop or potential home studio. The property was restored by the Preservation Trust in 2014 and benefits from double glazing, mains gas central heating and fast broadband/mobile signals.
Important practical points: the house is being sold at auction (starting bid £270,000) and has listed status, which can restrict alterations and could complicate some renovations. There are only two bathrooms for five bedrooms, and the building’s solid brick walls are assumed to have no modern cavity insulation. The immediate area shows high crime and significant deprivation, which may affect some buyers’ priorities.
This home will suit a buyer seeking historic character with substantial internal space — particularly a family wanting central town living or someone looking for a flexible property with outbuildings. Prospective purchasers should factor listed‑building restrictions and the auction sale process into their plans, and obtain surveys before bidding.
5 bedroom town house for sale in London Road, King's Lynn, Norfolk, PE30 5EU, PE30 — £270,000 • 5 bed • 2 bath
5 bedroom town house for sale in King's Lynn, Norfolk, PE30 — £400,000 • 5 bed • 2 bath • 1987 ft²
4 bedroom terraced house for sale in King Street, KING'S LYNN, PE30 — £375,000 • 4 bed • 2 bath • 1936 ft²
4 bedroom terraced house for sale in King Street, King's Lynn, PE30 — £375,000 • 4 bed • 2 bath • 1936 ft²
3 bedroom house for sale in Church Street, KING'S LYNN, Norfolk, PE30 — £260,000 • 3 bed • 2 bath • 1423 ft²
3 bedroom terraced house for sale in South Everard Street, King's Lynn, PE30 — £290,000 • 3 bed • 1 bath • 1227 ft²


















































































































