**Standout Features:**
- Impressive Edwardian detached property with beautiful period features
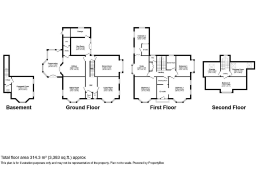
- Spacious 6 bedrooms and 3 bathrooms across approximately 3,383 square feet
- Large gardens with a sweeping driveway and stunning coastal views
- Ground floor includes 4 reception rooms, a Mediterranean-style conservatory, and a characterful kitchen
- Principal bedroom with en-suite bathroom and dressing room, plus a balcony
- Excellent mobile signal and fast broadband speeds
**Notable Concerns:**
- Requires updates; solid brick walls have no insulation (assumed)
- Some glazing is dated (double glazed before 2002)
- High council tax for the area
- Location categorized as 'very deprived'
Welcome to this remarkable Edwardian detached home that offers both elegance and versatility, nestled in the picturesque hillside of Old Colwyn. With striking period details, this spacious residence boasts over 3,300 square feet, including 6 generous bedrooms and 3 bathrooms, perfect for families or those seeking extra space. Imagine enjoying stunning coastal and countryside views from the comfort of an expansive garden that envelops this beautiful property.
Step inside to discover an inviting hallway leading to four charming reception rooms adorned with bay windows, along with a sunroom flowing seamlessly into the garden. The character-rich kitchen adds further appeal, complete with a delightful Mediterranean-style conservatory for relaxed family gatherings. Each bedroom is airy and light-filled, particularly the principal suite with its en-suite, balcony, and dressing room—ideal for privacy and comfort.
Although the property possesses significant potential for renovation and modernization, it also features a sizeable basement with unique light and views. While living in a vibrant community with plentiful amenities, including schools and shops, be mindful of the higher council tax and the need for some renovations. This home presents a unique opportunity to create a stunning residence that blends historic charm with contemporary living. Don't miss out on this exceptional property; embrace the future possibilities it offers!
5 bedroom detached house for sale in Ael Y Bryn Road, Colwyn Bay, Conwy, LL29 — £525,000 • 5 bed • 3 bath • 2274 ft²
5 bedroom detached house for sale in Holyrood Avenue, Old Colwyn, Colwyn Bay, LL29 — £450,000 • 5 bed • 1 bath • 2445 ft²
6 bedroom detached house for sale in Abergele Road, Old Colwyn, Colwyn Bay, Conwy, LL29 — £445,000 • 6 bed • 1 bath • 2220 ft²
4 bedroom detached house for sale in Peulwys Lane, Old Colwyn , LL29 — £580,000 • 4 bed • 2 bath
3 bedroom semi-detached house for sale in Kensington Avenue, Old Colwyn , LL29 — £239,950 • 3 bed • 1 bath • 1034 ft²
6 bedroom detached house for sale in Garth Road, Old Colwyn, Colwyn Bay, Conwy, LL29 — £425,000 • 6 bed • 4 bath • 2750 ft²






































































