PO7 6PA - 4 bed extended detached family home in Mill Road, PO7 6PA

View on Property Piper

4 bedroom detached house for sale in Mill Road, Denmead, PO7

Summary - 20 MILL ROAD DENMEAD WATERLOOVILLE PO7 6PA

4 bed 2 bath Detached

Village plot with large garden, excellent parking and nearby good schools.
- Extended four-bedroom detached house with flexible living spaces
- Master bedroom with en-suite and three further bedrooms
- Open-plan kitchen and dining room with garden access
- Large mature rear garden and patio, family-friendly and fenced
- Driveway parking for multiple vehicles on gravel surface
- Double glazing and gas central heating throughout
- EPC D; cavity walls appear uninsulated — energy upgrades possible
- Council tax above average; local crime levels above average
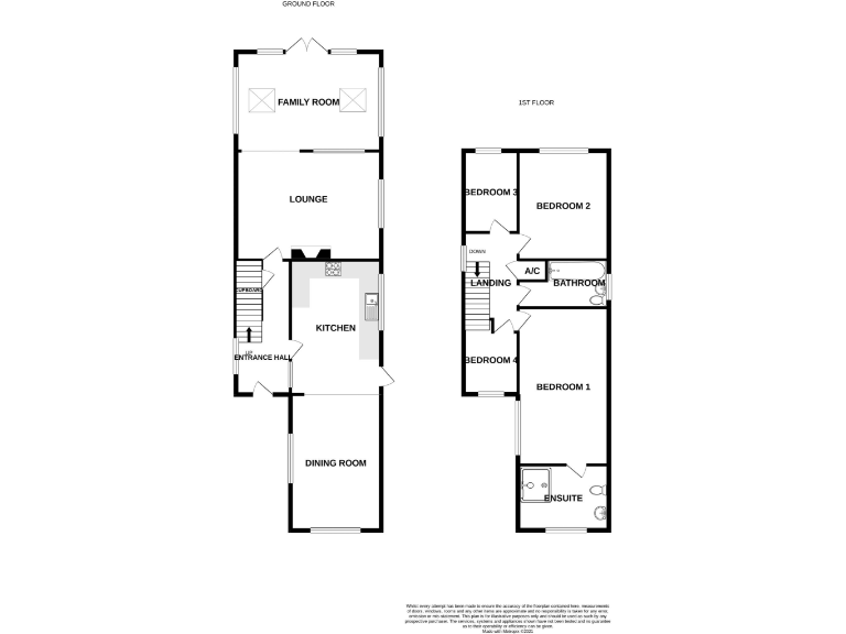
Set on a large plot in the heart of Denmead village, this extended four-bedroom detached house offers flexible family living over two floors. The ground floor provides an open-plan kitchen and dining area, a separate lounge and family room, and generous garden access — great for children and entertaining. The master bedroom benefits from an en-suite; three further bedrooms and a modern family bathroom complete the first floor.

Practical comforts include double glazing, gas central heating with boiler and radiators, and off-street parking for multiple vehicles on a gravel driveway. The property sits close to well-rated primary and secondary schools and is within easy reach of local amenities and bus links, making daily life straightforward for families.

Buyers should note the EPC rating of D and that the original cavity walls appear to have no added insulation, presenting an opportunity to improve energy efficiency and running costs. Council tax is above average for the area, and local crime levels are higher than the national average; prospective purchasers may wish to review local reports. Overall, this is a comfortable, well-proportioned family home with clear potential for updating and improvement.

Property Details

Image Descriptions

Floorplan Description

Rooms

Textual Property Features

Target Audience

AI Tags

Detected Visual Features

EPC Details

Nearby Schools

Nearest Bars And Restaurants

,,,,}

Nearest General Shops

,,}

Nearest Grocery shops

,,}

Nearest Supermarkets

,,}

Nearest Religious buildings

,,}

Nearest Medical buildings

,,,}

Nearest Airports

}

Nearest Leisure Facilities

,,,,}

Nearest Tourist attractions

,,}

Nearest Train stations

,,,,}

Nearest Bus stations and stops

,,,,}

Nearest Hotels

,,}

Tags

Local Market Stats

Similar Properties

Meta

High Res Images

Compatible Images

Low res Images

Thumbnails

Raw Images

High Res Floorplan Images

Compatible Floorplan Images

Low res Floorplan Images

FloorplanImages Thumbnail

Raw Floorplan Images