**Standout Features:**
- Expansive land plot with planning permission for a three-bedroom detached family home (Reference: 0501/FUL/23)
- Located in a peaceful, green setting with woodland views
- Central to Fauldhouse amenities, including public transport and shopping
- Generous outdoor space, ideal for landscaping or family activities
- Off-street parking available with mono-bloc driveway
**Potential Downsides:**
- Area classification indicates a high demand for affordable housing
- May require additional investment for land preparation or utilities
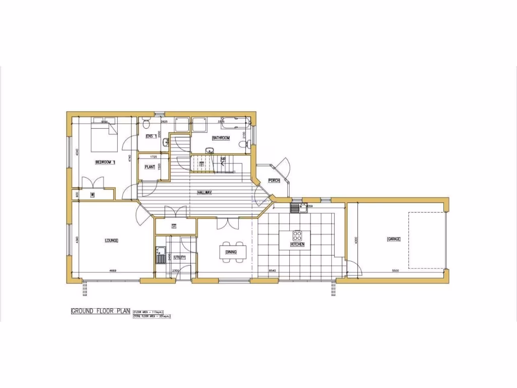
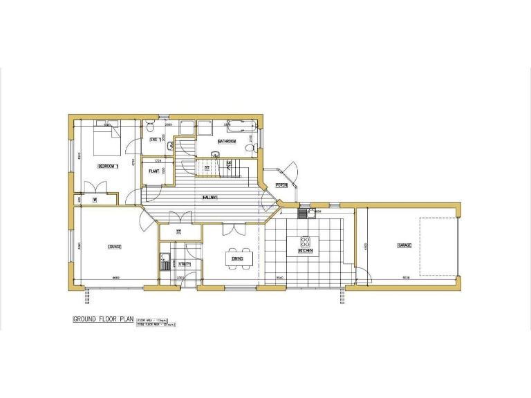
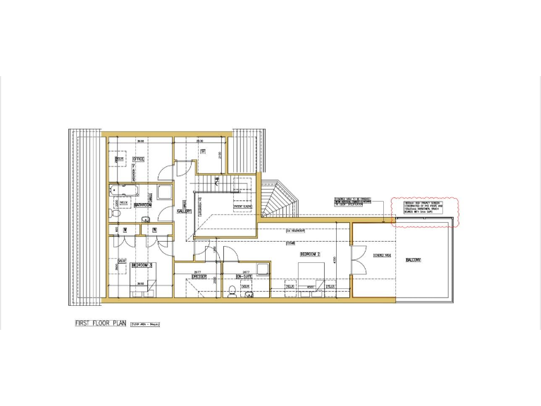
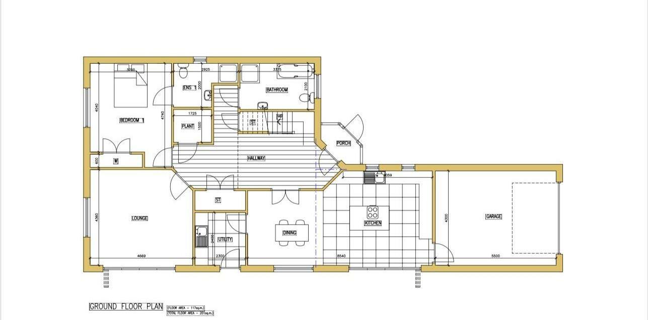
Situated on Lanrigg Road in Fauldhouse, this prime plot of land offers a remarkable opportunity for those looking to build their dream three-bedroom home in a scenic and tranquil setting. Surrounded by lush greenery and boasting serene woodland views, the site presents the ideal canvas to create a comfortable family residence or investment property. Enjoy the convenience of a bustling community with easy access to shops, parks, and public transport linking you to both Edinburgh and Glasgow.
With planning permission in place, you can dive into creating your personal oasis, making full use of the expansive garden perfect for outdoor entertaining or children's play. While the area may have characteristics that appeal mainly to investors and new homeowners due to its affordability dynamics, the location ensures future growth and community development, providing excellent long-term potential. Don’t miss out on this unique chance—land opportunities like this are rare and in high demand!
Land for sale in Willowbrae, Fauldhouse, EH47 — £95,000 • 1 bed • 1 bath • 9741 ft²
Plot for sale in Plot of Land, South end of Eastfield Road, Fauldhouse, EH47 — £125,000 • 1 bed • 1 bath
Land for sale in Plot of land to East of Victoria House, Lanrigg Road, Bathgate, EH47 — £55,000 • 1 bed • 1 bath
Land for sale in Greenhill Road, Hareshaw, Motherwell, ML1 — £85,000 • 1 bed • 1 bath
Plot for sale in Longford Croft West, West Calder, EH55 — £195,000 • 1 bed • 1 bath
Plot for sale in Longford Croft West, West Calder, EH55 — £195,000 • 1 bed • 1 bath






































