Refurbished two-bedroom cottage with garden and countryside views, 4.5 miles from Ruthin.
Two double bedrooms with vaulted ceilings and exposed purlins
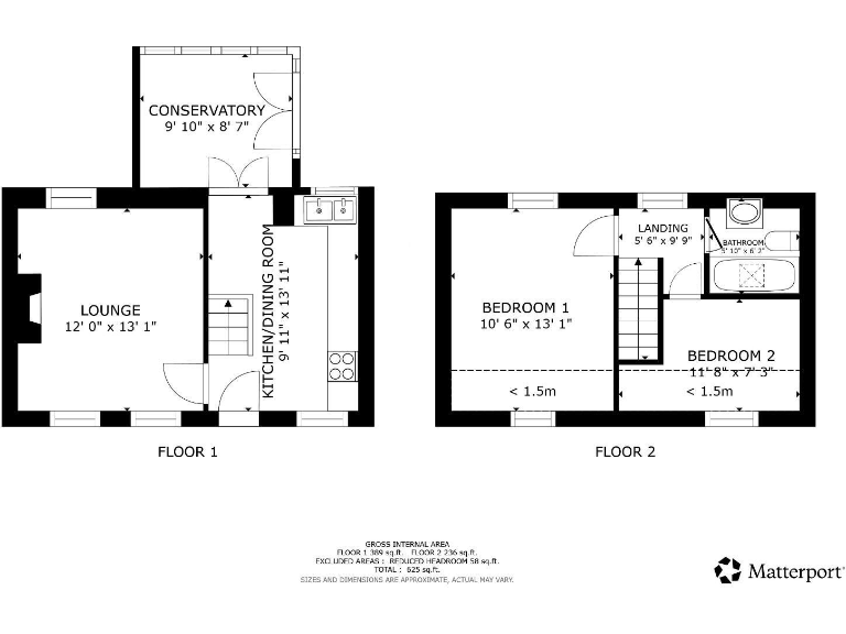
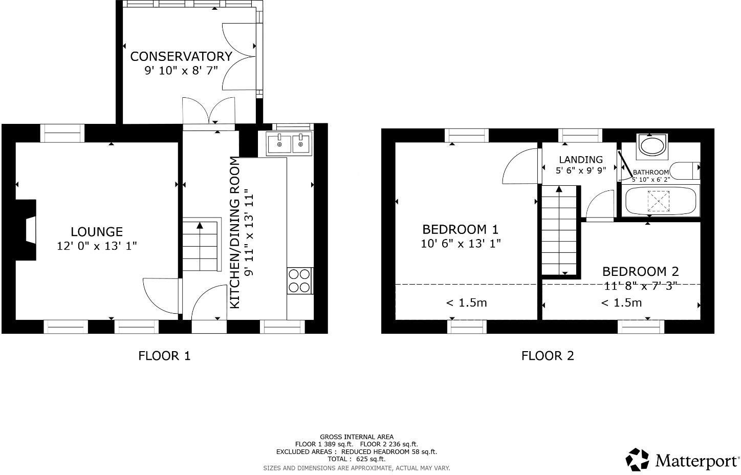
This red sandstone two-bedroom cottage blends period character with recent high-quality upgrades, making it an attractive move-in-ready home for a first-time buyer or couple. The living room retains exposed beams and a wood-burning stove, while the newly fitted kitchen and modern conservatory provide comfortable everyday living and dining space. The cottage is compact (about 625 sq ft) but well laid out across two floors, with attractive shutters and vaulted ceilings in the bedrooms that preserve character.
Outside, a southerly-facing enclosed cottage garden enjoys countryside and mountain stream views. The property sits in the centre of Cyffylliog village, a small rural community about 4.5 miles from Ruthin, offering a local inn and basic amenities with broader services available in Ruthin.
Buyers should note some practical points: heating is by electric panel radiators (no central gas), the original granite walls are likely uninsulated, and rooms are generally small to average in size. Broadband is average and the location is in a remoter, very deprived area by some indices, which may affect services and resale dynamics despite low local crime and excellent mobile signal. Overall this is a characterful, newly refurbished cottage suited to buyers seeking a compact rural home with modern finishes and manageable outdoor space.
2 bedroom terraced house for sale in Borthyn, Ruthin, LL15 — £149,950 • 2 bed • 1 bath • 657 ft²
4 bedroom semi-detached house for sale in Tafarn-Y-Gelyn, Llanferres, Mold, CH7 — £342,500 • 4 bed • 2 bath • 1724 ft²
3 bedroom semi-detached house for sale in 2 Bryn Ffynnon, Wigfair, St Asaph, LL17 0ET, LL17 — £200,000 • 3 bed • 2 bath • 799 ft²
2 bedroom house for sale in Rhyd Y Meudwy, Ruthin, LL15 — £325,000 • 2 bed • 1 bath • 1274 ft²
2 bedroom detached house for sale in Bryn Saith Marchog, LL21 — £285,000 • 2 bed • 1 bath • 862 ft²
2 bedroom character property for sale in Llansannan, Denbigh, LL16 — £250,000 • 2 bed • 1 bath • 831 ft²






















































