Mature garden, hot tub deck and easy London rail links for country commuters.
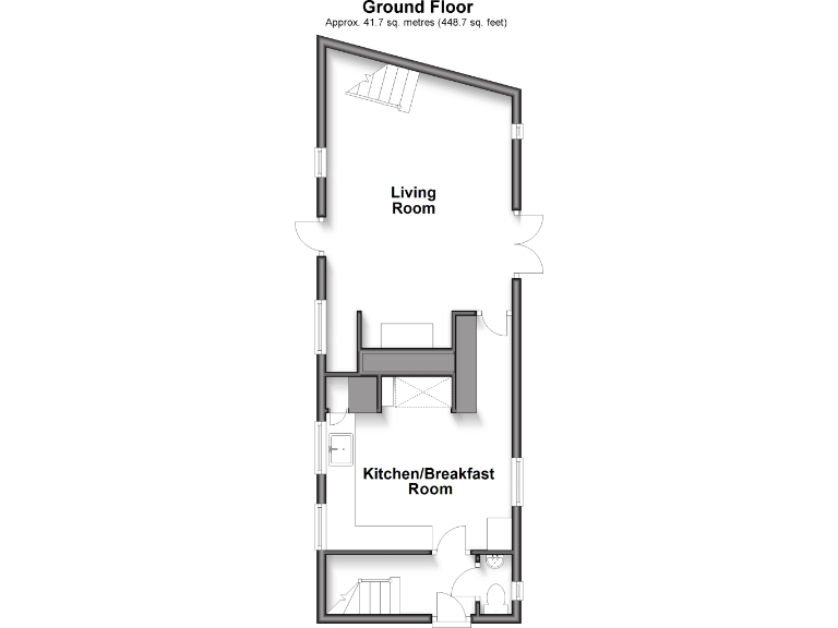
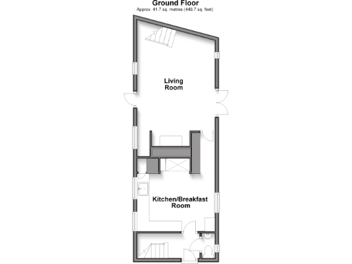
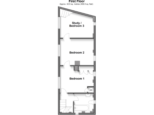
Three-bedroom link-detached cottage with period character
Set in peaceful Cowden, this charming three-bedroom link-detached cottage blends period character with generous outdoor space. The living room centres on a cosy wood burner and the country-style kitchen includes a Range, offering a welcoming family hub. A large, mature garden provides multiple seating areas, a deck with hot tub and plenty of privacy — ideal for outdoor entertaining and children to explore.
Practical features include off-street driveway parking and a predictable traditional layout with three inter-linked bedrooms upstairs. The property runs on an oil-fired boiler and sits in solid brick walls that are likely uninsulated, so energy performance will be lower than modern homes. Broadband speeds are very slow, which may affect home working and streaming.
Important drawbacks are factual: the home lies in a high flood-risk area and will need ongoing maintenance and possible improvement works (insulation, modern heating electrics, and broadband upgrades) to reduce running costs. The house is presented as an average-sized family dwelling with strong garden appeal — a good fit for buyers prioritising rural tranquillity and outdoor space who accept renovation and flood-mitigation responsibilities.
4 bedroom detached house for sale in Spode Lane, Cowden, Edenbridge, Kent, TN8 — £1,250,000 • 4 bed • 1 bath • 1894 ft²
2 bedroom end of terrace house for sale in North Street, Cowden, Kent, TN8 — £400,000 • 2 bed • 1 bath • 661 ft²
3 bedroom terraced house for sale in High Street, Cowden, Edenbridge, Kent, TN8 — £500,000 • 3 bed • 2 bath • 1008 ft²
4 bedroom semi-detached house for sale in Tibbs Court Lane, Matfield, Tonbridge, Kent, TN12 — £600,000 • 4 bed • 2 bath • 1314 ft²
3 bedroom semi-detached house for sale in Furnace Lane, Cowden, Edenbridge, Kent, TN8 — £825,000 • 3 bed • 2 bath • 1457 ft²
3 bedroom cottage for sale in Holtye Road, Hammerwood, East Sussex, TN8 — £750,000 • 3 bed • 1 bath • 1034 ft²


































































