Low-maintenance retirement living near shops, services and regular buses.
No onward chain; long lease remaining (over 100 years)
This well-situated one-bedroom first-floor retirement apartment in Peacock Lodge offers convenient, low-maintenance living close to Fishponds town centre. With no onward chain and a long lease remaining, it suits someone seeking an independent retirement base with on-site support and communal facilities.
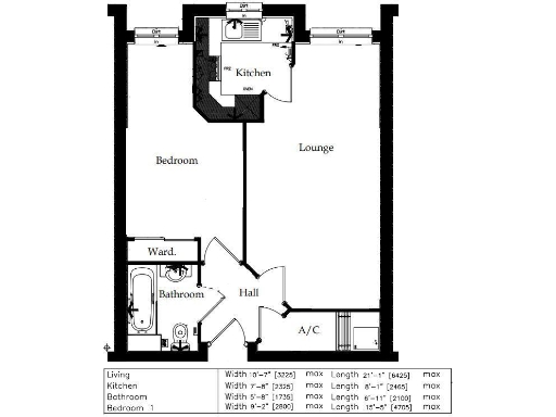
The apartment is bright and practical, with a fitted kitchen including integrated appliances, a living/dining room with electric feature fireplace, and a double bedroom with built-in wardrobe. Safety and convenience are strong points: a Lodge Manager is on site five days a week, a 24-hour Careline is installed, and there is secure video entry plus communal fire detection systems.
Communal benefits include landscaped gardens, owners and visitor off-road parking, a fully equipped laundry room and a bookable Guest Suite (also usable across Churchill Living sites). These shared services cater well to socialising and simple living, while the wide range of nearby shops, buses, GP surgery and dentist are all within a five-minute level walk.
Notable practical considerations are the relatively high annual service charge and an expensive ground rent, plus electric room heaters rather than central heating. The local area records higher crime levels and broader area deprivation statistics, and broadband speeds are average. Prospective buyers should review service charge accounts and the lease details before committing.
2 bedroom retirement property for sale in New Pooles Lodge, Fishponds, Bristol, BS16 — £360,000 • 2 bed • 2 bath • 967 ft²
1 bedroom retirement property for sale in Concorde Lodge, Filton, Bristol, BS34 — £115,000 • 1 bed • 1 bath • 453 ft²
1 bedroom retirement property for sale in Grace Lodge, Thornbury, Bristol, BS35 — £219,995 • 1 bed • 1 bath • 615 ft²
2 bedroom retirement property for sale in Concorde Lodge, Filton, Bristol, BS34 — £170,000 • 2 bed • 1 bath • 693 ft²
1 bedroom flat for sale in Purdy Court, New Station Road, Fishponds, BS16 — £145,000 • 1 bed • 1 bath • 517 ft²
1 bedroom apartment for sale in Maywood Crescent, Fishponds, BS16 — £230,000 • 1 bed • 1 bath • 529 ft²






























































