Immediate rental income with refurbishment upside for hands-on investors.
Long-term tenant in place producing £7,800 pa gross income
Leasehold tenure — confirm remaining lease length and charges
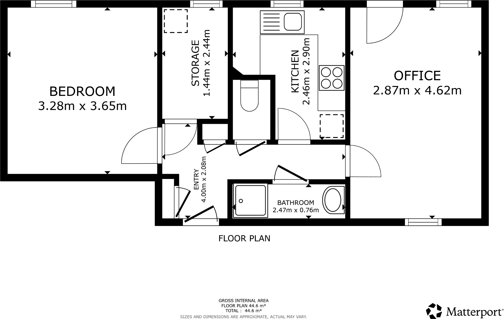
Approx. internal area ~506 sqft; compact two-bedroom layout
Shared rear garden; street parking only
Area classed very deprived with above-average local crime
Property shows external neglect; internal refurbishment likely required
Buyers Premium applies on sale — factor into purchase costs
Presented as a buy-to-let; appeals to serious investors/developers
A compact two-bedroom leasehold flat in B32 offered with a long-term tenant in situ, generating a current gross rental income of £7,800 per year. Its small footprint (circa 506 sqft) and existing tenancy make it a straightforward addition to an investor portfolio seeking immediate cashflow.
The property includes a lounge, kitchen, bathroom, street parking and a shared rear garden. The building’s exterior and front plot show signs of neglect and internal condition should be confirmed; photos and a full Let Property Pack are available for detailed investment appraisal.
Important considerations: the area is classed as very deprived with above-average crime, and the flat is leasehold. A Buyers Premium applies on purchase. These factors affect long-term capital growth and management requirements but are already reflected in the current yield profile.
Recommended next steps for interested buyers are an on-site inspection, review of the tenancy paperwork and Let Property Pack, and checks on lease length, service charges and local comparable rents to confirm net yield and refurbishment costs.
2 bedroom flat for sale in Escelie Way, Birmingham, B29 — £171,500 • 2 bed • 1 bath • 538 ft²
2 bedroom flat for sale in New Coventry Road, Birmingham, B26 — £140,000 • 2 bed • 2 bath • 657 ft²
2 bedroom flat for sale in Edwards Road, Birmingham, B24 — £112,500 • 2 bed • 1 bath • 592 ft²
2 bedroom flat for sale in Hagley Road, Birmingham, B16 — £113,000 • 2 bed • 1 bath • 658 ft²
3 bedroom terraced house for sale in Third Avenue, Birmingham, B9 — £180,000 • 3 bed • 1 bath • 872 ft²
2 bedroom flat for sale in Hagley Road, Birmingham, B17 — £160,000 • 2 bed • 2 bath • 657 ft²


































































































