Private large plot in sought-after Ravenshead, ideal for growing families..
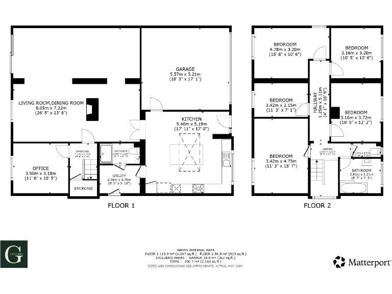
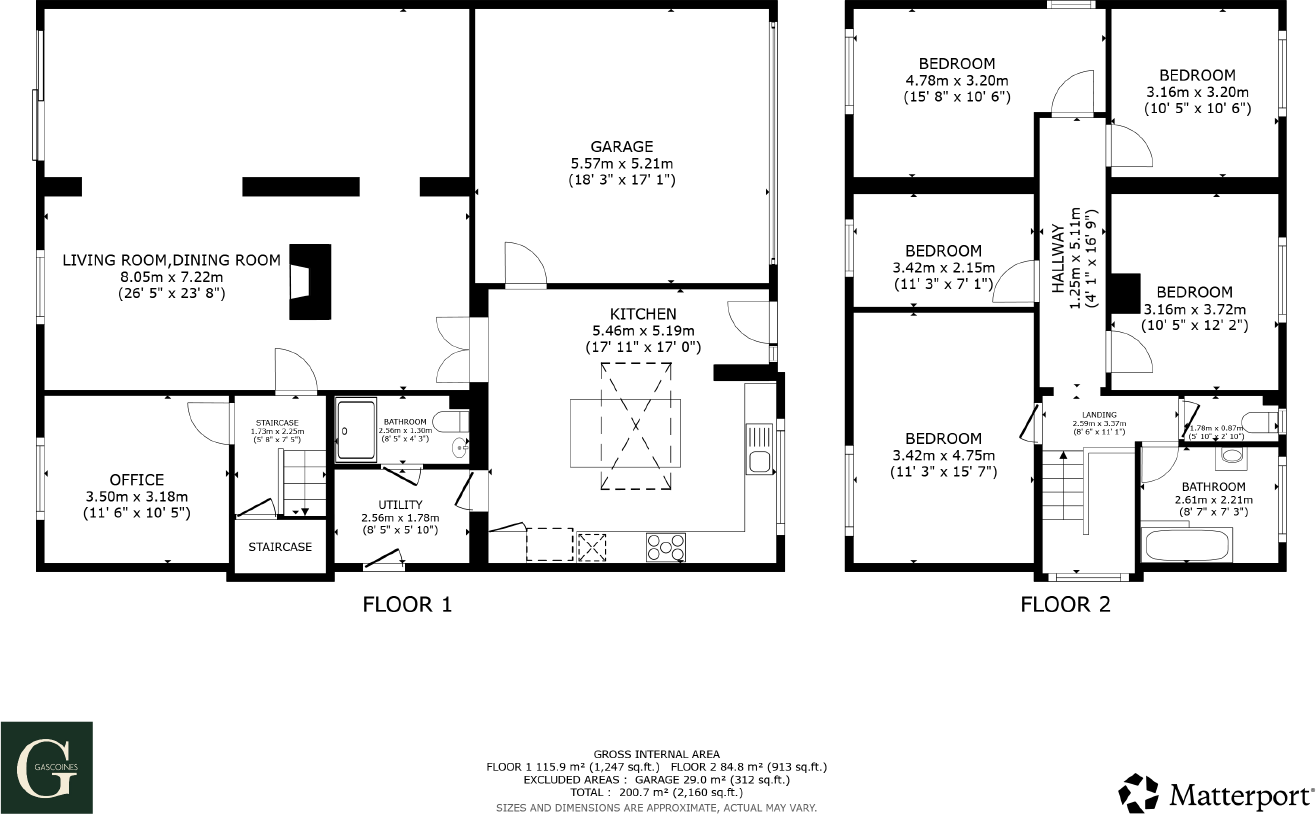
Well-presented five-bedroom detached family house
Open-plan kitchen with skylight and large windows
Integral garage plus wide block-paved driveway
External outbuilding ideal as home office or hobby room
Large, private rear garden with patio and mature screening
Built 1967–75; some original elements likely—inspect services
Tenure not specified in listing; confirm before purchase
Two bathrooms for five bedrooms may require adaptation
A well-presented five-bedroom detached house on a generous plot in sought-after Ravenshead. The property offers substantial family accommodation across two floors, with an open-plan kitchen and separate living spaces that suit modern family life. Large windows, skylights and recent double glazing give bright, contemporary interiors while external wall insulation improves thermal comfort.
Practical features include an integral garage, wide block-paved driveway, utility room and an outbuilding currently used as a home office — useful for remote working or hobbies. The private rear garden is mature and mostly lawned with a patio area; the plot size suggests potential to extend, subject to planning consent.
Notable points to check at viewing: tenure is not confirmed in the listing, there are two bathrooms for five bedrooms which may be tight for larger families, and the house dates from the late 1960s/1970s so some systems or finishes might be original in places despite upgrades. Council tax is moderate and the area benefits from very low crime, good schools and fast broadband.
Overall this property will appeal to families seeking roomy, contemporary living in an affluent suburb with easy access to local amenities and commuter routes. A viewing is recommended to appreciate the internal space and garden orientation.
5 bedroom detached house for sale in Milton Drive, Ravenshead, Nottingham, NG15 — £425,000 • 5 bed • 2 bath • 2111 ft²
5 bedroom detached house for sale in Rowan Avenue, Ravenshead, Nottingham, Nottinghamshire, NG15 — £400,000 • 5 bed • 2 bath • 1658 ft²
4 bedroom detached house for sale in Vernon Crescent, Ravenshead, Nottingham, NG15 — £450,000 • 4 bed • 2 bath • 1586 ft²
3 bedroom detached house for sale in Summercourt Drive, Ravenshead, Nottingham, NG15 — £389,950 • 3 bed • 1 bath • 1528 ft²
4 bedroom detached house for sale in Chestnut Close, Harlow Wood, Mansfield, Nottinghamshire, NG18 — £425,000 • 4 bed • 2 bath • 1655 ft²
3 bedroom detached house for sale in Hereford Road, NG15 — £285,000 • 3 bed • 1 bath • 748 ft²










































































































































































