Sought-after Ravenshead location with garage and a generous, secure garden.
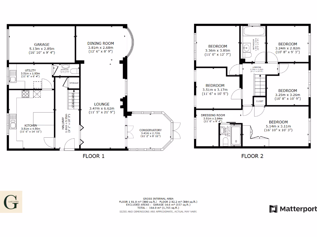
Five double bedrooms including master with dressing area and ensuite
Spacious lounge-diner plus conservatory and breakfast kitchen
Utility room and ground-floor WC for practical family life
Integral single garage and wide driveway with multiple parking spaces
Secure rear garden with lawn and paved seating area
Built 1967–75; some fixtures and windows may reflect this era
Double glazing installed before 2002; EPC rating 68 (D)
Expensive council tax band — factor into ongoing costs
This substantial five-bedroom detached house sits in a sought-after Ravenshead street, close to local shops, doctors and well-rated primary schools. The layout suits growing families: a spacious lounge-diner, conservatory, breakfast kitchen, utility and ground-floor WC provide practical everyday living spaces, while five double bedrooms (master with dressing area and ensuite) give flexible sleeping arrangements.
Outside, the property benefits from a wide driveway and an integral single garage, plus a secure rear garden with lawn and paved seating area ideal for alfresco dining and child play. The plot is a decent size for the area and the home presents a balanced mix of modern convenience and 1970s character — double glazing and mains gas central heating are already in place.
Buyers should note a few material facts: the house was built in the late 1960s–1970s and the installed double glazing dates from before 2002, so some windows and internal fittings may reflect older styles. The EPC rating is 68 (D), indicating average energy efficiency, and the property carries an expensive council tax band — relevant for household running costs.
Overall this is a well-presented family home in an affluent, low-crime area with fast broadband and good mobile signal. It will suit families seeking generous space close to community amenities, and also buyers who may wish to update cosmetic elements to their own taste.
4 bedroom detached house for sale in Vernon Crescent, Ravenshead, Nottingham, NG15 — £450,000 • 4 bed • 2 bath • 1586 ft²
5 bedroom detached house for sale in Milton Drive, Ravenshead, Nottingham, NG15 — £425,000 • 5 bed • 2 bath • 2111 ft²
5 bedroom detached house for sale in Milton Drive, Ravenshead, Nottingham, Nottinghamshire, NG15 — £575,000 • 5 bed • 2 bath • 2054 ft²
4 bedroom detached house for sale in Longdale Avenue, Ravenshead, Nottingham, Nottinghamshire, NG15 — £450,000 • 4 bed • 2 bath • 1509 ft²
5 bedroom detached house for sale in Main Road, Ravenshead, Nottingham, NG15 — £700,000 • 5 bed • 3 bath • 2800 ft²
4 bedroom detached house for sale in Summercourt Drive, Ravenshead, Nottingham, NG15 — £490,000 • 4 bed • 2 bath • 1641 ft²






































































































































