Period features, garden and quick access to South Woodford tube — ideal for couples or small families.
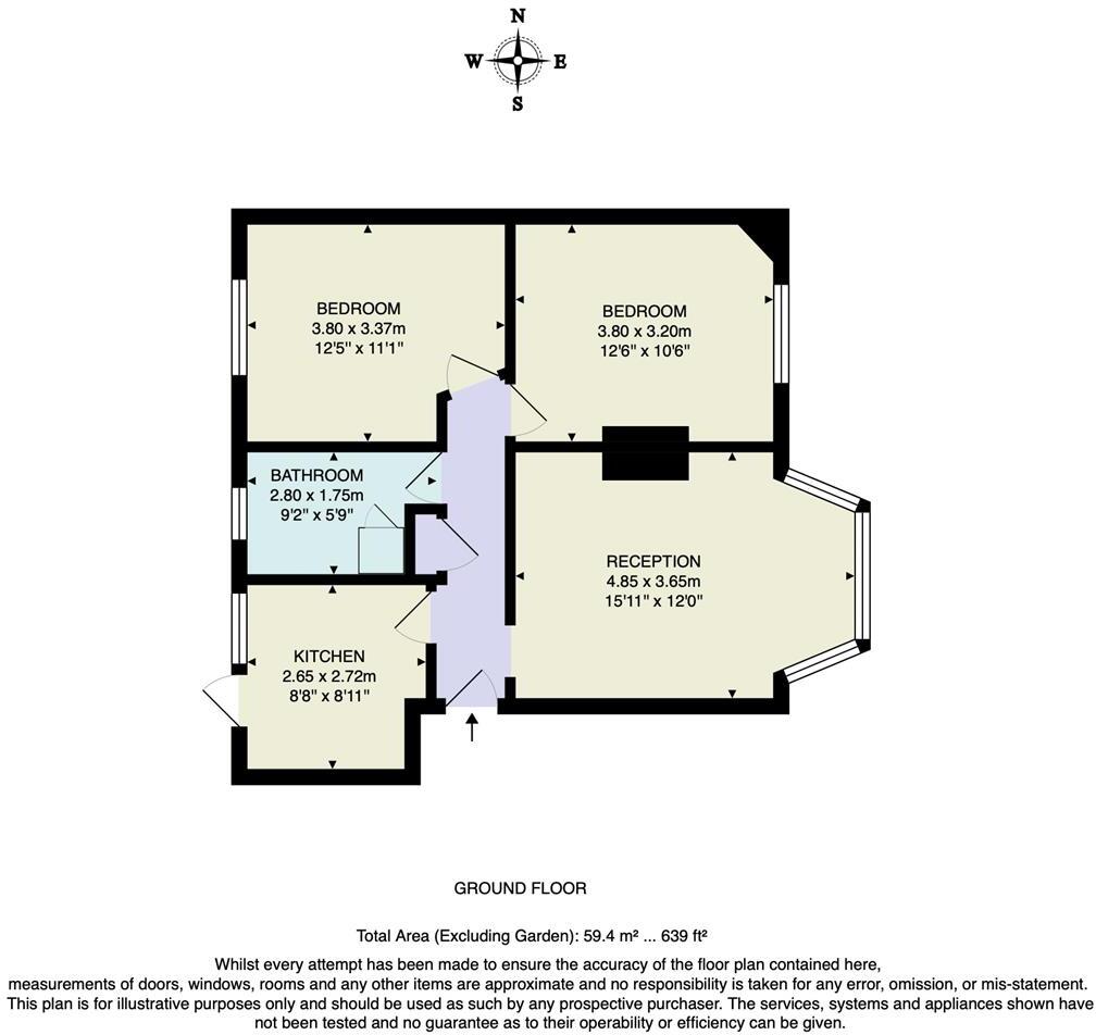
Chain-free ground-floor two-bedroom flat with private rear garden
Set on a peaceful South Woodford street, this ground-floor two-bedroom flat blends period character with practical everyday living. High ceilings, a large bay window and original parquet flooring create a bright, welcoming reception room, while two double bedrooms provide comfortable sleeping space for a small family or professionals. The property is offered chain-free, allowing for a straightforward move.
A private rear garden opens directly from the kitchen — a leafy spot for outdoor dining and relaxation — and the flat sits within easy walking distance of South Woodford tube and Roding Valley Park, making commutes and weekend walks convenient. The local high street offers cafés, shops and amenities close by.
Buyers should note this is a leasehold property with 108 years remaining and a small ground rent of £13. The building’s solid brick construction likely lacks wall insulation (as built), and the main heating is via room heaters on mains gas, so buyers may want to budget for energy-efficiency improvements or a central heating upgrade. Overall the flat presents a well-kept, characterful home with scope to improve running costs and modern comfort where desired.
2 bedroom flat for sale in George Lane, South Woodford, E18 — £450,000 • 2 bed • 1 bath • 641 ft²
2 bedroom flat for sale in Chigwell Road, South Woodford, E18 — £308,000 • 2 bed • 1 bath • 657 ft²
2 bedroom flat for sale in Stanley Road, South Woodford, London, E18 — £425,000 • 2 bed • 1 bath • 622 ft²
2 bedroom flat for sale in Maybank Road, South Woodford, E18 — £420,000 • 2 bed • 1 bath • 639 ft²
2 bedroom flat for sale in Stanley Road, South Woodford, E18 — £475,000 • 2 bed • 1 bath • 659 ft²
2 bedroom flat for sale in Churchfields, London, E18 — £330,000 • 2 bed • 1 bath • 504 ft²






























































































