**Standout Features:**
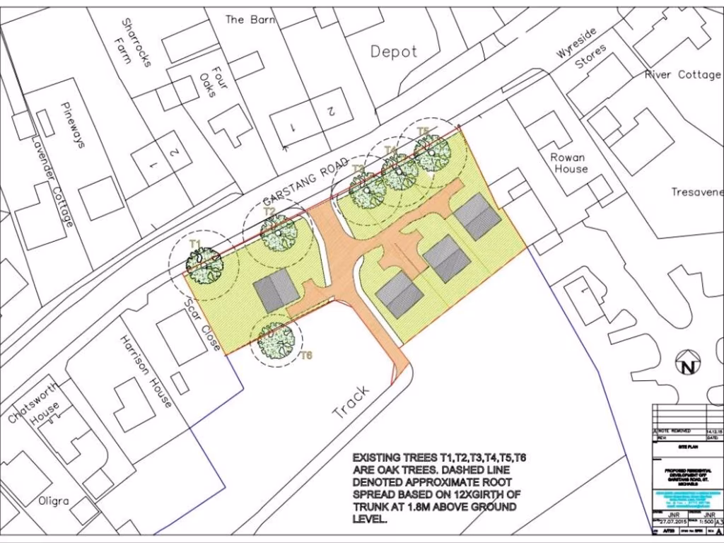
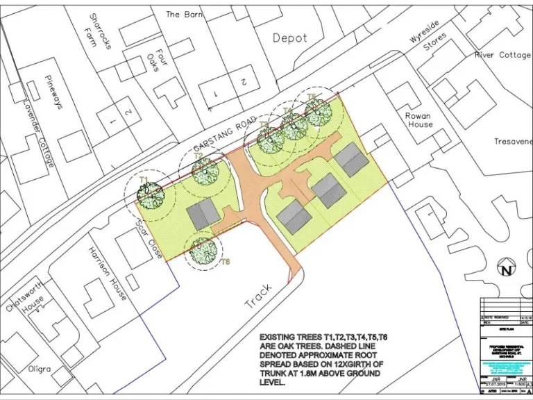
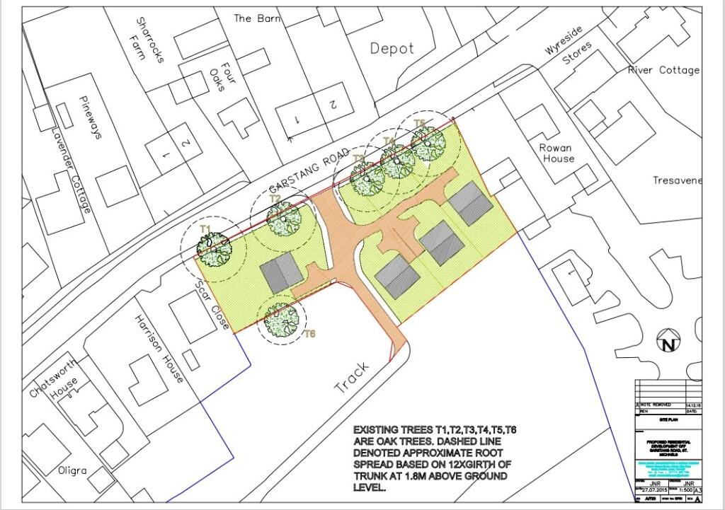
- Planning consent for four detached 4-bedroom bespoke dwellings
- Expansive 0.80-acre plot in a sought-after village location
- Exceptional rural views and mature tree screening
- Close proximity to essential amenities, schools, and excellent transport links
**Potential Concerns:**
- Existing development plans require adherence to local planning regulations
- Maintenance of the land may be needed before development begins
Take advantage of a rare development opportunity in the picturesque village of St Michaels-on-Wyre. This substantial 0.80-acre plot offers planning consent for four bespoke four-bedroom family homes, making it an ideal investment for builders and developers looking to capitalize on a premium location. Surrounded by scenic rural views and mature trees, the plot ensures privacy while providing easy access to local amenities, well-rated schools, and transport links to the M6.
This development not only provides the chance to create desirable family residences but also embodies the charm and community spirit of village life. Be part of this growing area, where the demand for quality housing is expected to rise due to its tranquil environment combined with convenient commuting options. Opportunities of this nature are rare, so act quickly before it's too late!
Land for sale in The Lane, Poulton le Fylde, FY6 — £700,000 • 1 bed • 1 bath
Plot for sale in Back Lane, Whittingham, Preston, Lancashire, PR3 — £300,000 • 1 bed • 1 bath
Land for sale in Moss House Road, Blackpool, FY4 — £300,000 • 1 bed • 1 bath
Plot for sale in Apple Tree Barn, Building Plot, Wray, Lancaster, LA2 8QH, LA2 — £200,000 • 1 bed • 1 bath
Plot for sale in Higher Walton Road, Walton-le-Dale, Preston, Lancashire, PR5 — £200,000 • 1 bed • 1 bath
Plot for sale in Village Road, Cockerham, Lancaster, Lancashire, LA2 — £125,000 • 1 bed • 1 bath


















