Compact two-bed with large garden, garage and long 125-year lease — ideal first home or investor.
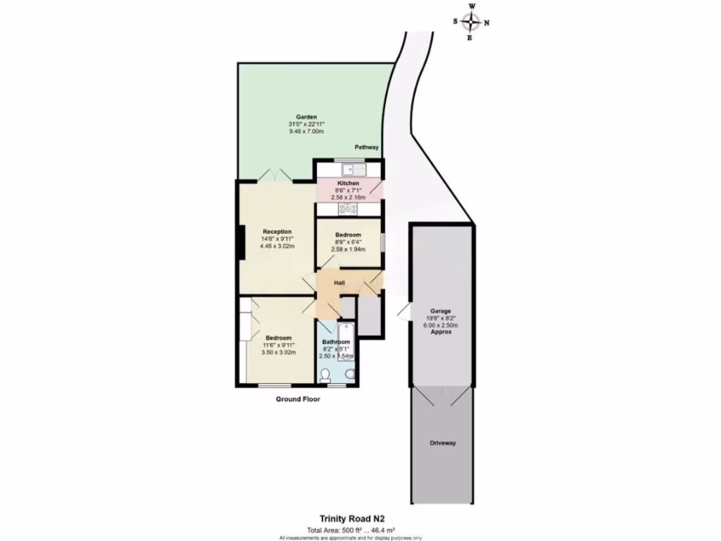
Two-bedroom ground-floor maisonette, approx 500 sq ft
A compact and well-presented two-bedroom ground-floor maisonette in Old East Finchley, ideal for first-time buyers or buy-to-let investors seeking strong local amenities. The accommodation is efficiently arranged across about 500 sq ft and includes a good-sized reception/dining room, separate fitted kitchen and a modern bathroom.
Stand-out extras — a private rear garden of generous proportions and a detached c.20ft garage with off-street driveway — give this flat more outdoor and storage space than typical ground-floor apartments. The property is offered with a long lease of 125 years and low ground rent of £50, improving resale and letting appeal.
Buyers should note the home’s age (late 1960s/1970s construction) and solid-brick walls likely without cavity insulation; double glazing was installed before 2002. Heating is by mains-gas boiler and radiators. The total area is compact, so while the layout is efficient, space is limited compared with larger flats or houses.
Positioned in a very affluent, inner-city cosmopolitan area with good schools nearby, low crime and excellent mobile signal, the property is well placed for local shops, transport and community amenities. It suits anyone who values outdoor space and parking while accepting a small overall footprint and some potential for energy-efficiency upgrades.
2 bedroom maisonette for sale in Market Place, East Finchley, N2 — £555,000 • 2 bed • 1 bath • 689 ft²
2 bedroom apartment for sale in High Road, East Finchley, N2 9AB, N2 — £499,950 • 2 bed • 1 bath • 776 ft²
2 bedroom maisonette for sale in Manor Park Road, Finchley, N2 — £600,000 • 2 bed • 1 bath • 659 ft²
2 bedroom maisonette for sale in Kitchener Road, East Finchley, N2 — £475,000 • 2 bed • 1 bath • 743 ft²
2 bedroom maisonette for sale in Sedgemere Avenue, East Finchley, N2 — £675,000 • 2 bed • 1 bath • 937 ft²
2 bedroom maisonette for sale in High Road, Finchley, London, N2 — £495,000 • 2 bed • 1 bath • 732 ft²






































