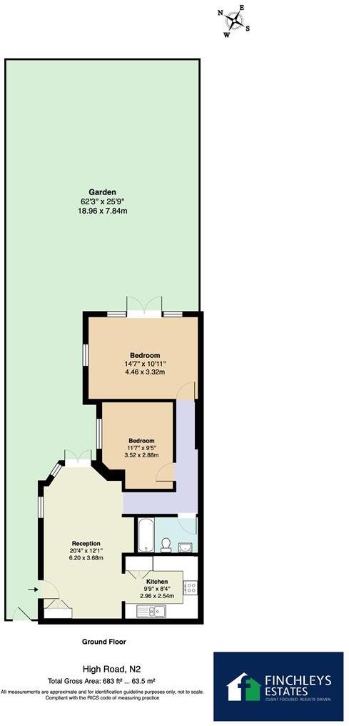
Bright ground-floor home with expansive private garden, ideal for growing families.
Private 70ft rear garden — rare for the area
Newly refurbished interior, ready to move into
999-year lease; chain-free sale
Ground-floor maisonette with private entrance
One bathroom only — may limit larger families
Broadband speeds are slow locally
Area shows higher deprivation and average crime levels
Approx 776 sq ft with high ceilings and lots of light
This newly refurbished two-bedroom ground-floor maisonette offers a rare 70ft private rear garden in East Finchley, combining period character with contemporary finishes. The property benefits from high ceilings, abundant natural light and a private entrance, creating a bright, welcoming living space suited to families or professionals who value outdoor space in an urban setting.
Practical strengths include a new 999-year lease, chain-free sale and an affordable council-tax band. At approximately 776 sq ft the layout provides a spacious reception room, two good-sized bedrooms and one modern bathroom — a straightforward, move-in-ready home with low exterior maintenance and pleasant period curb appeal.
Notable drawbacks are factual: broadband speeds are slow and the local area shows higher deprivation indicators with average recorded crime levels. There is a single bathroom, which may be limiting for some buyers, and some nearby primary schools have mixed Ofsted ratings. These points are balanced by excellent transport links on the High Road and nearby highly rated secondary schools.
Overall this maisonette is a practical purchase for young families or commuter professionals seeking generous private outdoor space, a long lease and a recently renovated interior. Buyers should be comfortable with the area’s broadband limitations and the single-bathroom layout.
2 bedroom maisonette for sale in High Road, Finchley, London, N2 — £495,000 • 2 bed • 1 bath • 732 ft²
2 bedroom maisonette for sale in Cromwell Close, East Finchley, N2 — £550,000 • 2 bed • 1 bath • 646 ft²
2 bedroom flat for sale in Long Lane, Finchley, N3 — £465,000 • 2 bed • 1 bath • 764 ft²
2 bedroom apartment for sale in Wellington Place, Great North Road, London, N2 — £475,000 • 2 bed • 1 bath • 695 ft²
2 bedroom maisonette for sale in Market Place, East Finchley, N2 — £555,000 • 2 bed • 1 bath • 689 ft²
2 bedroom maisonette for sale in Grove Road, North Finchley, N12 — £575,000 • 2 bed • 2 bath • 732 ft²


























































































