Bright two-bedroom with period charm minutes from transport and Primrose Hill.
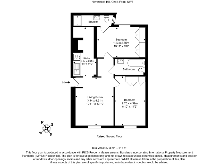
Raised ground-floor Victorian conversion with period features
Occupying the raised ground floor of an elegant Victorian conversion on Haverstock Hill, this two-bedroom apartment blends period character with practical modern living. The oversized bay sash brings abundant light into the generous living room, while the principal bedroom benefits from fitted wardrobes and an en suite shower. At around 616 sq ft, the layout is well balanced for a couple or two sharers.
Location is a primary strength: Chalk Farm Underground is 0.2 miles away, Belsize Park 0.4 miles, and Primrose Hill’s open space and views are under ten minutes on foot. A wide choice of cafés, shops and cultural venues including the Roundhouse are within easy walking distance, making day-to-day life exceptionally convenient.
The long lease (991 years) and mains gas central heating are practical ownership advantages. Buyers should note a service charge of approximately £1,500 per year and Council Tax band D. The building is of solid-brick Victorian construction with assumed lack of wall insulation — worth considering if planning energy upgrades. The wider area scores as very deprived statistically, though locally it reads as an inner-city, cosmopolitan neighbourhood popular with professionals.
2 bedroom apartment for sale in Haverstock Hill, Belsize Park, London, NW3 — £625,000 • 2 bed • 1 bath • 710 ft²
2 bedroom apartment for sale in Prince Of Wales Road, London, NW5 — £700,000 • 2 bed • 1 bath • 816 ft²
2 bedroom flat for sale in Adelaide Road, London, NW3 — £600,000 • 2 bed • 1 bath • 594 ft²
2 bedroom apartment for sale in Haverstock Hill, Belsize Park NW3 — £625,000 • 2 bed • 1 bath • 753 ft²
2 bedroom apartment for sale in Adelaide Road, London, NW3 — £495,000 • 2 bed • 1 bath • 681 ft²
2 bedroom apartment for sale in Prince Of Wales Road, Chalk Farm, NW5 — £700,000 • 2 bed • 1 bath • 1065 ft²






































