Bright, characterful three-bedroom home near Stanley Park — ready to move in.
Well-presented three-bedroom semi-detached with bay windows
Freehold and chain free for a quicker sale process
Detached garage and driveway for off-street parking
Private rear garden of medium size with mature shrubs
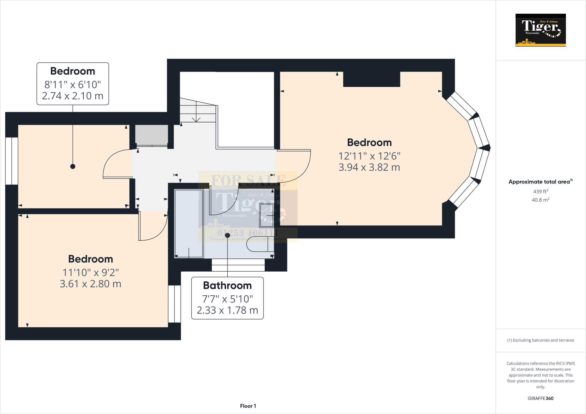
Single family bathroom; one WC downstairs only
Small plot size; limited garden space for extension
Built circa 1950s with period character and high ceilings
Local area shows high deprivation; check neighbourhood suitability
This three-bedroom semi-detached home on Collingwood Avenue offers a bright, bay-fronted living space that suits growing families. The house feels larger than it looks, with high ceilings, a downstairs WC and a private rear garden for outdoor play and quiet evenings. A detached garage and driveway provide off-street parking — a valuable asset close to town.
Positioned a short walk from Stanley Park and Blackpool Victoria Hospital, the location is practical for family life and commuting. Local schools include several rated Good; everyday amenities, leisure facilities and public transport are nearby. Broadband is reported as fast and mobile signal excellent.
Built around the 1950s and presented in neutral décor, the property retains period character while appearing well maintained. It is sold freehold and chain free for a straightforward purchase. Council Tax is band C (approximately £2,126 pa).
Notable practical points: the plot is small and the house has a single family bathroom, which may be limiting for larger households. The wider area shows high deprivation levels, which potential buyers should consider alongside the property’s strengths. Double glazing is in place, but the installation date is unknown.
3 bedroom semi-detached house for sale in Bryan Road, Blackpool, FY3 — £159,950 • 3 bed • 1 bath • 1093 ft²
3 bedroom detached house for sale in Westmorland Avenue, Blackpool, FY1 — £230,000 • 3 bed • 1 bath • 1312 ft²
3 bedroom semi-detached house for sale in Glen Street, Blackpool, FY3 — £130,000 • 3 bed • 1 bath • 1001 ft²
3 bedroom semi-detached house for sale in Marlborough Road, Blackpool, FY3 — £145,000 • 3 bed • 1 bath • 870 ft²
3 bedroom semi-detached house for sale in Manor Road, Blackpool, FY1 — £140,000 • 3 bed • 1 bath • 966 ft²
3 bedroom terraced house for sale in Devonshire Road, Blackpool, FY3 — £110,000 • 3 bed • 1 bath • 1029 ft²


























































































