Chain-free period home with loft potential near Stanley Park for first-time buyers or investors.
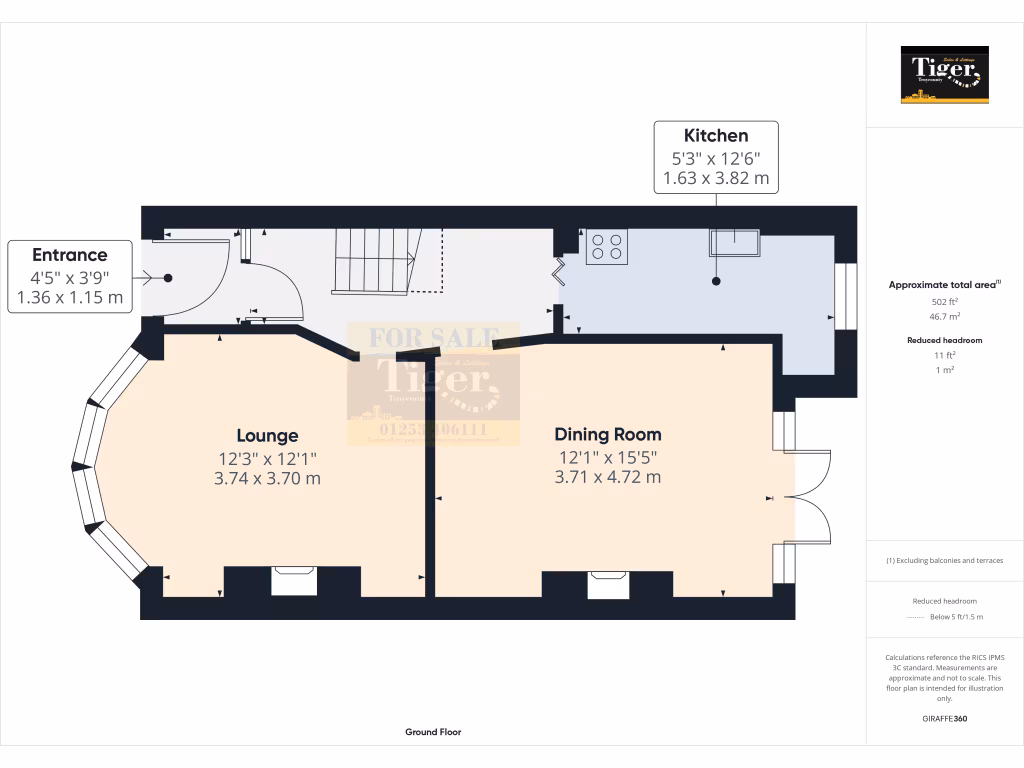
Freehold three-bedroom semi-detached with period bay frontage
Two reception rooms and high ceilings retain original character
Large loft room with realistic conversion potential
Chain free — no onward chain delay
One bathroom only; may need modernisation throughout
Small rear/side plot; limited outdoor space
Located within walking distance of Stanley Park and local amenities
Area: very deprived wider neighbourhood; rental demand constrained
A roomy three-bedroom Edwardian semi-detached in walking distance of Stanley Park, offered chain free and freehold. The house keeps period character with a red-brick bay frontage, high ceilings and two reception rooms, while a large loft room offers clear scope for conversion into extra living space or storage.
Practical positives include a single ground-floor bathroom, average overall size (approx. 966 sq ft) and fast broadband with excellent mobile signal — useful for home working. The property sits on a small plot in a city location with easy access to local shops, pubs and schools rated Good, making it a sensible choice for first-time buyers or investors looking for rental demand.
Buyers should note important contextual issues: the home is in a very deprived wider area with constrained local household incomes, and the plot is small. There is only one bathroom and some elements are likely to need updating to modern tastes and standards; purchasers should budget for refurbishment if they want to fully modernise or complete a loft conversion. Crime is average for the area.
Overall this is a characterful, chain-free opportunity for a buyer seeking an affordable family home or a refurbishment/investment project close to Stanley Park and local amenities.
3 bedroom semi-detached house for sale in Gorse Road, Stanley Park, FY3 — £175,000 • 3 bed • 1 bath • 1264 ft²
3 bedroom semi-detached house for sale in Gainsborough Road, Blackpool, FY1 — £139,950 • 3 bed • 1 bath • 879 ft²
3 bedroom semi-detached house for sale in Longton Road, Blackpool, FY1 — £199,950 • 3 bed • 1 bath • 1137 ft²
3 bedroom semi-detached house for sale in Torsway Avenue, Stanley Park, FY3 — £190,000 • 3 bed • 2 bath • 1042 ft²
3 bedroom semi-detached house for sale in Marlborough Road, Blackpool, FY3 — £145,000 • 3 bed • 1 bath • 870 ft²
2 bedroom terraced house for sale in Newton Drive, Blackpool, FY3 — £115,000 • 2 bed • 2 bath • 1217 ft²


















































































