Bright two-bedroom top-floor apartment with parking and easy M3 access — no onward chain.
No onward chain; ready to move into
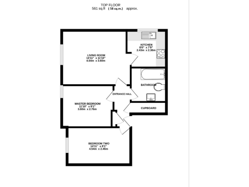
Top-floor two double bedrooms; bright living/dining room
Separate fitted kitchen with built-in appliances
Allocated parking space plus ample visitor bays
Leasehold: ~97 years remaining; check long-term implications
Service charge £1,634pa and ground rent £317pa
Electric storage heaters — potentially higher running costs
Small overall size (~561 sq ft); limited storage and living space
A bright two-bedroom top-floor apartment in the purpose-built Old Farm Place development, offered with no onward chain. The layout delivers a generous living/dining room, separate fitted kitchen with appliances and two double bedrooms — a straightforward, ready-to-live-in home suited to first-time buyers or buy-to-let investors. Communal grounds and a nearby nature reserve give a pleasant suburban feel and easy access to outdoor recreation.
Practical positives include one allocated parking space plus ample visitor bays, a secure telephone entry system and fast mobile/broadband connectivity. The block is modern (Barratt Homes, c.1998) and appears well maintained externally, with communal lawns and mature trees providing an attractive setting. Road access is convenient with easy access to the M3.
Buyers should note the property is leasehold with 97 years remaining; the current service charge is £1,634 per annum and ground rent £317 per annum. Heating is via electric storage heaters rather than gas central heating — this can affect running costs. The apartment is compact (about 561 sq ft) so storage and living space are limited compared with larger flats or houses.
Overall this is a practical, low-maintenance option for someone seeking an entry-level purchase in a quiet residential location or an investor targeting steady rental demand. The combination of location, parking and low perceived maintenance makes it a sensible choice, provided the lease length and service charges meet your long-term plans.
2 bedroom flat for sale in Cody Close, Ash Vale, Surrey, GU12 — £200,000 • 2 bed • 1 bath • 481 ft²
2 bedroom flat for sale in Balmoral House, Ash Vale, Surrey, GU12 — £220,000 • 2 bed • 2 bath • 470 ft²
2 bedroom flat for sale in Vickers House, Vickers Road, Ash Vale, Surrey, GU12 — £175,000 • 2 bed • 1 bath • 490 ft²
2 bedroom flat for sale in Whittle Close, Ash Vale, Surrey, GU12 — £225,000 • 2 bed • 2 bath • 496 ft²
2 bedroom apartment for sale in Curlew Court, Boxalls Lane, Aldershot, GU11 — £190,000 • 2 bed • 1 bath • 485 ft²
2 bedroom flat for sale in Woodland Walk, Aldershot, Hampshire, GU12 — £250,000 • 2 bed • 2 bath • 633 ft²










































