**Key Features:**
- Newly renovated semi-detached house built in 1960
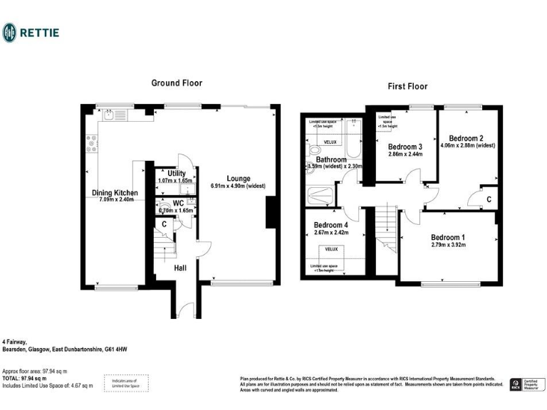
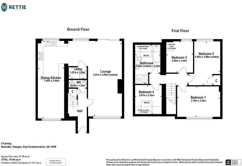
- 4 spacious bedrooms (2 double, 2 single)
- Open plan living area with lounge, modern Wren kitchen, and dining room
- Large rear garden with timber sundeck, ideal for family gatherings
- Off-street parking for two cars and a Tesla charging point
- Excellent mobile signal and fast broadband speeds
- Chain free
This beautifully extended semi-detached house in the desirable Castlehill area of Bearsden presents an exceptional opportunity for families looking for a well-designed home close to reputable schools. Inside, you're greeted by a spacious lounge featuring a charming fireplace, an open plan kitchen with stylish Wren units, and a generous dining area that flows into a lovely backyard—perfect for outdoor entertaining and family fun.
The property comprises four well-appointed bedrooms, including a versatile space that can easily serve as a home office, and a spacious bathroom complete with a large shower. Enjoy modern conveniences such as a gas central heating system and double glazing throughout. The front garden accommodates off-street parking for two vehicles, with additional value offered by the included Tesla charging point.
While the location boasts proximity to top-performing schools and local amenities, potential buyers should note the property's council tax band is above average. Overall, this home offers both comfort and flexibility for future renovations, making it a fitting choice for families eager to settle in an affluent community with an inviting atmosphere. Don’t miss out on this chance to create lasting memories in a vibrant and sought-after neighborhood!
4 bedroom detached house for sale in Cluny Avenue, Bearsden, G61 — £479,000 • 4 bed • 2 bath • 1980 ft²
4 bedroom semi-detached house for sale in 172 Rannoch Drive, Bearsden, G61 2BG, G61 — £345,000 • 4 bed • 1 bath • 1184 ft²
4 bedroom semi-detached house for sale in Stirling Drive, Bearsden, G61 — £405,000 • 4 bed • 2 bath • 2293 ft²
3 bedroom semi-detached house for sale in North View, Bearsden, G61 — £345,000 • 3 bed • 2 bath • 1204 ft²
4 bedroom detached house for sale in Abercrombie Drive, Bearsden, G61 — £479,000 • 4 bed • 2 bath • 1980 ft²
3 bedroom detached house for sale in Skye Gardens, Bearsden, G61 — £310,000 • 3 bed • 1 bath • 915 ft²


























































































































































