Cleared self-build site with planning for a three-bedroom chalet bungalow.
0.31 acre freehold plot with detailed planning consent (24/01424/FUL)
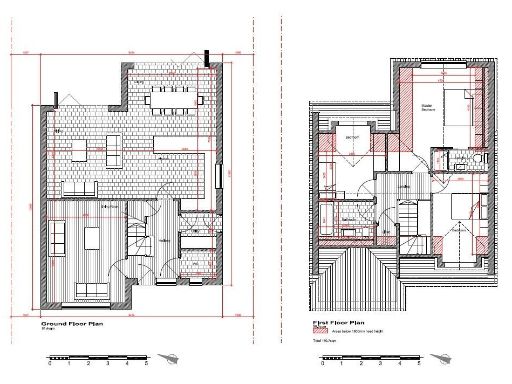
A cleared, level 0.31-acre freehold plot with detailed planning consent for a detached chalet bungalow (Planning Ref: 24/01424/FUL). The site has new access gates and fencing, sits on a private road with secured entry, and benefits from a semi-rural setting adjacent to woodland and established residential gardens.
This opportunity is aimed at purchasers wanting a ready-to-build single dwelling with planning in place for a 1,614 sqft, three-bedroom chalet bungalow with parking and garden. The plot is 1.5 miles from Wickford station (direct trains to London ~39 minutes) and has straightforward road links to the A127 and A130, making it attractive for commuter buyers or investors planning a new-build resale or rental.
Buyers should note practical limitations: the sale is for land only and will require full construction and utility connections to complete the consented dwelling. Broadband speeds are reported as slow and mobile signal average. Council tax band and certain service details remain unconfirmed and should be checked via title and utility searches.
Offered freehold with a guide price of £350,000, this cleared and gated plot presents a relatively low-risk, permitted-development route to a modern family home in a quiet, low-crime area. Immediate vacant possession and existing planning reduce lead-in time, but buyers must budget for build costs, connections, and on-site works to deliver the approved home.
Plot for sale in Land On The West Side of, 229 London Road, Wickford, Essex, SS12 0LG, SS12 — £690,000 • 1 bed • 1 bath
Land for sale in Main Road, Bicknacre, Chelmsford, Essex, CM3 — £550,000 • 1 bed • 1 bath • 2600 ft²
Land for sale in Ongar Road, Pilgrims Hatch, Brentwood, CM15 9SA, CM15 — £1,500,000 • 1 bed • 1 bath
Commercial development for sale in Lynton, Lower Dunton Road, Dunton, Basildon, CM13 3SP, CM13 — £850,000 • 1 bed • 1 bath
Land for sale in Hunter Chase, Hutton, Brentwood, CM13 — £500,000 • 2 bed • 1 bath • 1498 ft²
Land for sale in Rawreth Lane, Rawreth, SS11 — £200,000 • 1 bed • 1 bath • 4792 ft²


































