Chain-free home with business-approved workshop and substantial renovation potential.
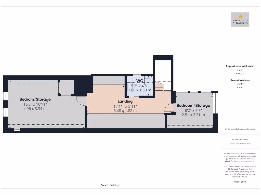
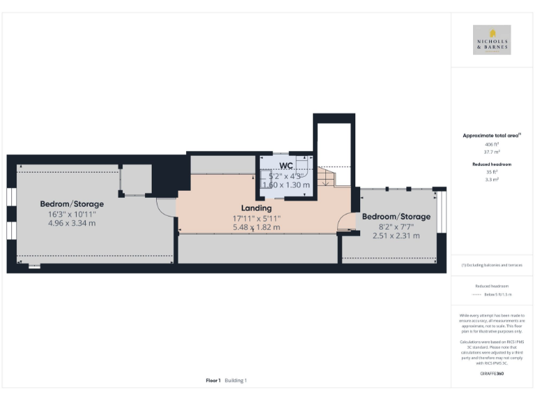
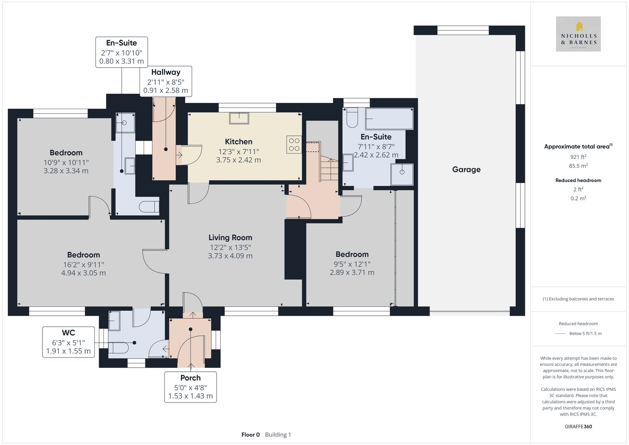
Detached two-bedroom bungalow with exceptionally large footprint
A rare, detached two-bedroom bungalow offering an unusually large footprint in a peaceful Southport location. The property includes two spacious reception rooms, a large kitchen, two en-suite bathrooms plus an additional WC, arranged across a flexible single‑storey layout with extra first-floor storage/bed spaces. The south-facing, secluded patio provides a low-maintenance outdoor area and the plot includes extensive driveway parking and a double garage with electric door.
This home requires renovation and modernisation throughout — decor is dated, services are traditional (gas boiler and radiators) and there are signs the roof may need attention. The cavity walls are assumed to have no added insulation and the current EPC is D. These factors create scope for improving energy efficiency and adding value for an incoming buyer willing to refurbish.
A key asset is the detached workshop with business planning approval, ideal for a home business, creative studio or rental income potential. With a generous overall size (about 1,496 sq ft), detached form and no onward chain, the property suits buyers seeking a spacious, single-storey home to adapt, or investors looking for refurbishment opportunity in a low-crime, well‑served area.
Local amenities include several well-rated primary and secondary schools, good bus links and nearby shops, making the location practical for families and downsizers. The tenure is freehold and council tax is affordable, adding practical appeal while buyers plan and budget renovation works.
2 bedroom detached bungalow for sale in Balmoral Drive, Southport, PR9 — £130,000 • 2 bed • 1 bath • 657 ft²
2 bedroom detached house for sale in Churchgate, Church Town, Southport, Merseyside, PR9 — £450,000 • 2 bed • 2 bath • 1590 ft²
3 bedroom detached bungalow for sale in Bradley Street, Southport, PR9 — £295,000 • 3 bed • 2 bath • 1491 ft²
2 bedroom bungalow for sale in Seacroft Crescent, Southport, Merseyside, PR9 9FR, PR9 — £270,000 • 2 bed • 1 bath • 838 ft²
4 bedroom detached bungalow for sale in Liverpool Road, Southport, Merseyside, PR8 3NT, PR8 — £375,000 • 4 bed • 1 bath • 1660 ft²
2 bedroom semi-detached bungalow for sale in Manchester Road, Southport, PR9 — £325,000 • 2 bed • 1 bath • 1093 ft²










































































































