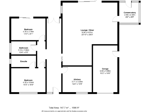
Single‑storey living with private garden and generous rooms in Churchtown.
Two double bedrooms, principal bedroom with private en‑suite
Spacious open-plan lounge and dining room with dual patio doors
Bright conservatory overlooking the private wraparound garden
Large integral garage with scope to convert to utility or workshop
Generous kitchen with integrated appliances and ample worktop space
Main bathroom has traditional fittings and may benefit from modernisation
Freehold in low-crime, affluent area with fast broadband and excellent signal
Council Tax band F — relatively high ongoing cost
This detached two-bedroom bungalow offers comfortable single-storey living in the heart of Churchtown. The layout centres on a wide open-plan lounge and dining room with sliding patio doors, flowing through to a bright conservatory and a generous kitchen — ideal for relaxed, low-maintenance living and entertaining.
Both bedrooms are good doubles; the principal suite benefits from a private en-suite while the second bedroom enjoys garden access. The main bathroom has a traditional finish and may suit updating to match modern tastes. Storage is strong, with fitted wardrobes and a large integral garage that could be repurposed as a utility or workshop.
Outside, a beautifully maintained wraparound rear garden provides privacy and multiple seating areas, with mature planting and a garden shed. A private driveway and integral garage offer secure parking. The property is freehold, in an affluent, low-crime area with fast broadband and excellent mobile signal.
Practical considerations: the home is council tax band F (expensive) and some internal finishes are traditional rather than contemporary, so buyers seeking a fully modern specification should factor potential refurbishment in. Viewings are recommended to appreciate the size and single-storey convenience on offer.
2 bedroom detached bungalow for sale in Preston New Road, Southport, PR9 — £295,000 • 2 bed • 1 bath • 1107 ft²
2 bedroom semi-detached bungalow for sale in Preston New Road, Southport, PR9 8NX, PR9 — £190,000 • 2 bed • 1 bath • 742 ft²
2 bedroom semi-detached bungalow for sale in Manchester Road, Southport, PR9 — £325,000 • 2 bed • 1 bath • 1093 ft²
3 bedroom semi-detached bungalow for sale in Larkfield Lane, Southport, PR9 8NP, PR9 — £250,000 • 3 bed • 1 bath • 689 ft²
2 bedroom bungalow for sale in Croyde Close, Southport, Merseyside, PR9 9FS, PR9 — £175,000 • 2 bed • 1 bath • 526 ft²
4 bedroom detached house for sale in Marshside Road, Southport, Merseyside, PR9 9TH, PR9 — £475,000 • 4 bed • 2 bath • 2145 ft²


































































