Move-in-ready two-bedroom home with parking and garden near town amenities.
Built 2022 — modern finish and contemporary fixtures
Two off-road parking spaces and enclosed rear garden
Air-source heat pump with underfloor heating (ground floor)
Freehold tenure; modest ongoing maintenance expected
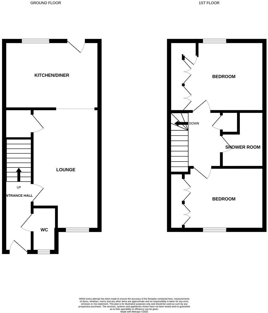
Approximately 786 sq ft — modest/average-sized two-bedroom
Area described as deprived; above-average local crime rate
Main fuel electricity (tariff unspecified) — check running costs
Fast broadband and excellent mobile signal, flood risk: none
This bright two-bedroom end-terrace, built in 2022, offers modern, low-maintenance living in central North Walsham. The ground floor has a lounge, contemporary kitchen/diner and WC, while upstairs provides two double bedrooms with fitted wardrobes and a contemporary shower room. Finished to a high standard with double glazing and underfloor heating on the ground floor, it feels ready to move into.
Practical features include two dedicated off-road parking spaces, an enclosed rear garden and freehold tenure — appealing for first-time buyers seeking straightforward ownership and low upkeep. Energy-efficient elements such as an air-source heat pump and good EPC performance should reduce heating bills compared with conventional electric-only systems.
Buyers should note the home is modest in overall size (approximately 786 sq ft) and sits in an area described as deprived with above-average local crime; purchasers should consider location suitability and personal safety preferences. The property runs on electricity (tariff unspecified), so check likely running costs and any available incentives for heat-pump systems.
Overall, this modern cottage-style end-terrace suits buyers wanting a contemporary, move-in-ready two-bedroom home with parking and a private garden, close to town amenities, schools and rail links to Norwich and the Norfolk coast.
2 bedroom end of terrace house for sale in Lower Cottage, Kings Arms Street, North Walsham, NR28 — £195,000 • 2 bed • 1 bath • 607 ft²
2 bedroom terraced house for sale in Kings Arms Street, North Walsham, NR28 — £180,000 • 2 bed • 1 bath • 657 ft²
2 bedroom terraced house for sale in Acorn Road, North Walsham, NR28 — £190,000 • 2 bed • 1 bath • 637 ft²
2 bedroom end of terrace house for sale in Fern Drive, North Walsham, NR28 — £215,000 • 2 bed • 1 bath • 623 ft²
2 bedroom terraced house for sale in Brick Kiln Road, North Walsham, NR28 — £210,000 • 2 bed • 1 bath • 657 ft²
2 bedroom terraced house for sale in Acorn Road, North Walsham, Norfolk, NR28 — £190,000 • 2 bed • 1 bath • 501 ft²






































































