Comfortable family living with en-suite dressing room and off-street parking.
Freehold three-bedroom semi-detached built in 2021
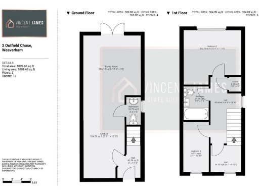
Set over three floors and built in 2021, this freehold semi-detached home offers contemporary family living in popular Winnington. The ground floor’s open-plan lounge/kitchen/diner creates a bright, sociable hub with French doors to the rear paved seating area — practical for entertaining and everyday family life. Two mid-level bedrooms and a family bathroom suit children or flexible home-working use.
The top-floor master suite provides a private retreat with a dedicated dressing area and en-suite shower room, appealing to buyers who value separation between living and sleeping zones. Outside, a two-car driveway and gated side access add convenience; the rear garden is low-maintenance with a paved seating area and turf — suitable for young families or those seeking minimal upkeep.
Practical details are straightforward: freehold tenure, mains gas central heating, fast broadband potential, very low local crime and no flood risk. The plot is small, so buyers expecting generous outdoor space should note the limited garden. Council Tax Band D applies and a service charge is listed as TBC, which prospective purchasers should clarify early in the process.
This property will suit growing families looking for a modern, low-maintenance home close to good local schools and amenities. It also offers strong appeal for buyers wanting move-in-ready accommodation with contemporary fixtures and sensible running costs.
3 bedroom semi-detached house for sale in Winnington Old Lane, Winnington, Northwich, CW8 — £240,000 • 3 bed • 1 bath • 841 ft²
3 bedroom house for sale in Western Way, Winnington Village, Northwich, CW8 — £245,000 • 3 bed • 2 bath • 876 ft²
3 bedroom semi-detached house for sale in Burnside Way, Winnington, Northwich, CW8 — £285,000 • 3 bed • 2 bath • 1030 ft²
4 bedroom house for sale in Winnington Lane, Northwich, CW8 — £260,000 • 4 bed • 3 bath • 967 ft²
3 bedroom semi-detached house for sale in Hollybank Close, Winnington Northwich, CW8 — £230,000 • 3 bed • 1 bath • 620 ft²
3 bedroom semi-detached house for sale in Winnington Avenue,
Northwich,
CW8 — £274,995 • 3 bed • 2 bath • 898 ft²






















































































































