Low-maintenance family living close to schools and leisure in a quiet, affluent neighbourhood.
Three bedrooms with ensuite and separate dressing room
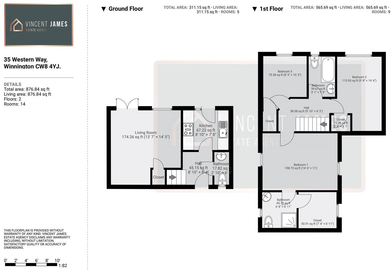
A modern three-bedroom family home on Winnington Village, offered freehold on completion and with no onward chain. Built in the early 2000s, the house has contemporary brick styling, double glazing and gas central heating, arranged over two storeys to give practical living space for a growing family.
The ground floor offers a welcoming hallway with WC, a lounge-diner with French doors onto a paved patio and an adjoining fitted kitchen with space for appliances. Upstairs the master bedroom includes an ensuite and a dressing room, with two further bedrooms and a family bathroom completing the layout. The property totals about 876 sq ft—comfortable but not oversized—so rooms are efficient rather than expansive.
Outside there is an enclosed rear garden and one allocated off-street parking space. The development is quiet, low-crime and affluent, with fast broadband, good mobile signal and nearby amenities including parks, leisure facilities and highly rated local schools. Service charge is modest at roughly £120 per year.
Important practical points: the home is average-sized and most rooms are modest in scale; parking is for one car only. Buyers seeking a larger footprint or multiple parking spaces should note these limits. Overall this is a straightforward, well-presented modern home that will suit families or buyers seeking a low-maintenance, move-in-ready property in a well-served neighbourhood.
3 bedroom town house for sale in Walker Road, Winnington Village, Northwich, CW8 — £270,000 • 3 bed • 2 bath • 1073 ft²
3 bedroom semi-detached house for sale in Outfield Chase, Winnington, CW8 — £280,000 • 3 bed • 2 bath • 1009 ft²
3 bedroom mews property for sale in Saner Drive, Northwich, CW8 — £255,000 • 3 bed • 1 bath • 728 ft²
3 bedroom detached house for sale in Brooke Avenue, Northwich, Cheshire, CW8 — £290,000 • 3 bed • 2 bath • 1096 ft²
3 bedroom semi-detached house for sale in Winnington Avenue, Winnington Village, Northwich, CW8 — £250,000 • 3 bed • 2 bath • 912 ft²
3 bedroom terraced house for sale in Roberts Court, Northwich, Cheshire, CW8 — £230,000 • 3 bed • 2 bath • 1097 ft²














































































































































