Practical fixer with large garden and accessibility features near national park.
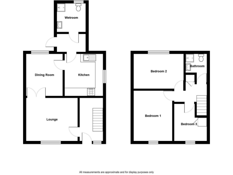
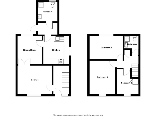
Three bedrooms with two reception rooms and two wet rooms
Large rear garden and very large overall plot
Shared driveway provides off-street parking
Oil-fired central heating; oil tank on site
Leased solar panels until early 2037 (lease in place)
Requires modernization—kitchen and internal finishes worn
EPC rating C; council tax Band B (relatively cheap)
Village location near Brecon Beacons, good broadband and signal
This three-bedroom ex-local authority semi-detached house sits in Lower Brynamman, close to the Brecon Beacons. The layout includes two reception rooms, two wet rooms and a large rear garden — a practical home for first-time buyers or a straightforward buy-to-let opportunity. The property benefits from double glazing, leased solar panels and an EPC rating of C.
The accommodation is traditional post‑war stock with modest room sizes and standard ceiling heights. The kitchen and general internal finishes show visible wear and will benefit from modernization to unlock full value. Two wet rooms provide good accessibility and rental flexibility.
Externally the plot is large with lawned rear garden and off-street parking via a shared driveway; an oil tank is present. Note that the solar panels are on a lease that runs until early 2037 and the property will suit buyers comfortable with some renovation and upkeep. Internal viewing is recommended to assess potential and layout.
Practical points: council tax Band B, freehold tenure, no flood risk, superfast broadband and excellent mobile signal in the village setting.
2 bedroom semi-detached house for sale in Derwydd Avenue, Gwaun Cae Gurwen, SA18 1PG, SA18 — £115,000 • 2 bed • 1 bath • 808 ft²
4 bedroom semi-detached house for sale in Cwmgarw Road Upper Brynamman, Ammanford, SA18 — £170,000 • 4 bed • 1 bath • 1086 ft²
3 bedroom semi-detached house for sale in Lon Y Gruglas, Ammanford, Carmarthenshire, SA18 — £175,000 • 3 bed • 1 bath
3 bedroom semi-detached house for sale in Glyn Road, Lower Brynamman, Ammanford, Carmarthenshire., SA18 — £200,000 • 3 bed • 1 bath • 980 ft²
3 bedroom semi-detached house for sale in Arfryn, Upper Brynamman, Ammanford, SA18 — £170,000 • 3 bed • 1 bath • 1053 ft²
3 bedroom semi-detached house for sale in Glyn Road, Lower Brynamman, Ammanford, Carmarthenshire., SA18 — £171,500 • 3 bed • 1 bath • 926 ft²






















































