Rare five-storey seafront home with large plot and conversion potential.
Sea-facing five-storey Georgian townhouse with panoramic marina views
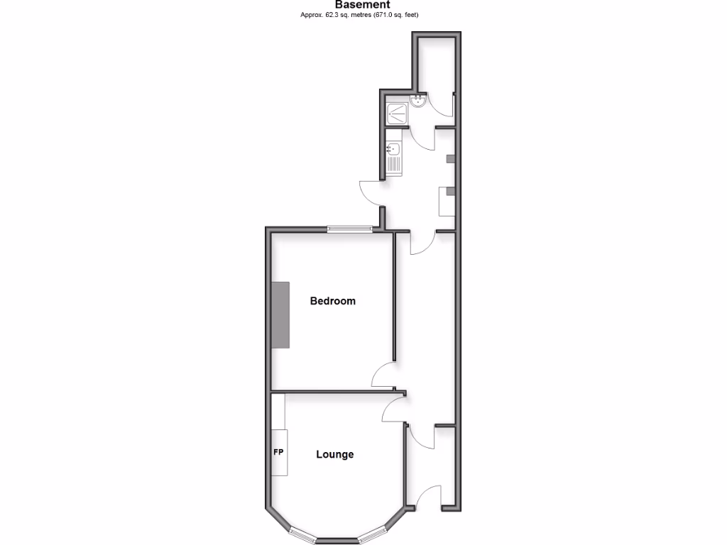
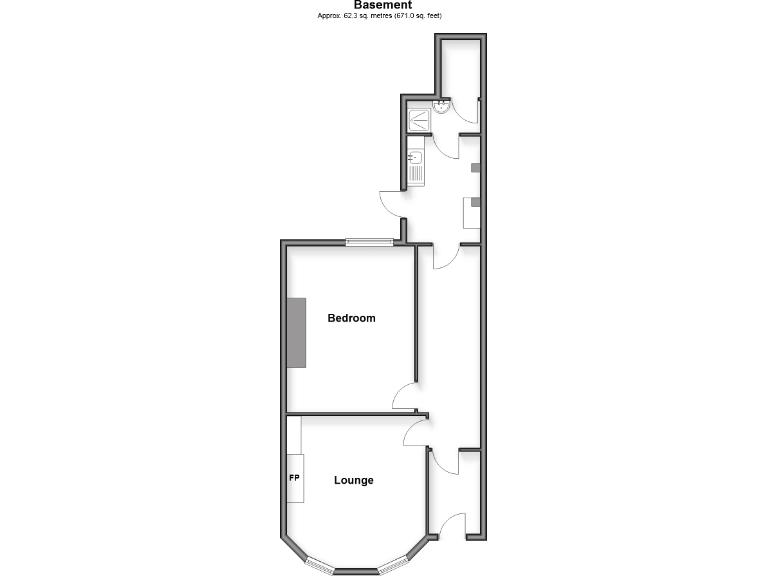
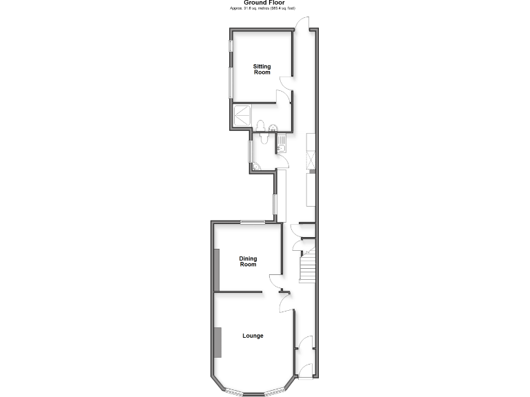
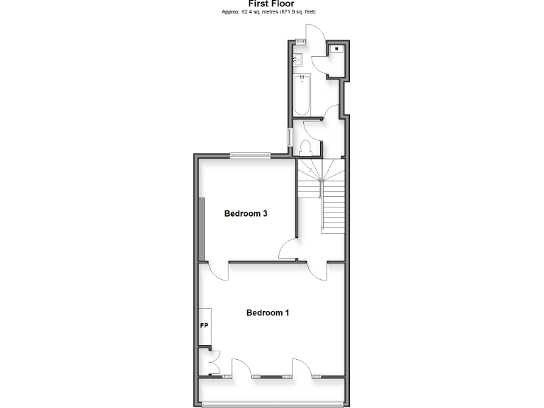
Set on the prestigious Paragon seafront, this expansive five-storey Georgian townhouse offers rare scale and panoramic sea views across multiple levels. The property includes a self-contained lower-level flat and a large double garage with off-street parking — features that support a range of uses, from a multi-family conversion to a high-yield holiday or rental operation (subject to consents).
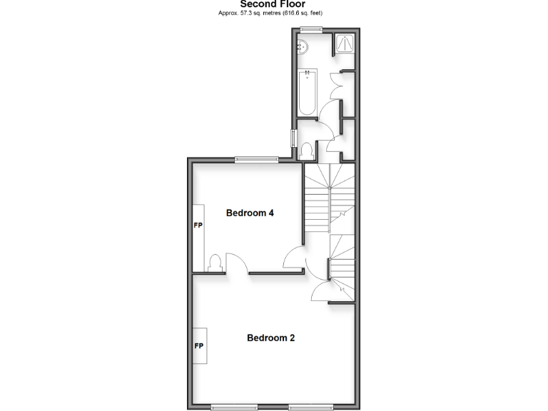
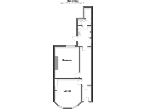
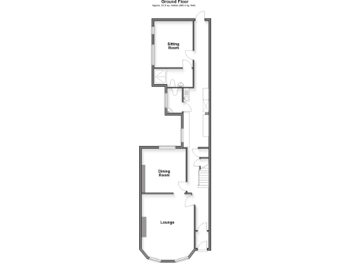
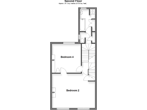
The house requires comprehensive renovation throughout: heating is mixed (mains gas boiler, radiators and some electric storage heaters), walls are solid brick with assumed no insulation, and some services/appliances may need replacement. This significant work creates scope for creative redesign and added value, given the 3,191 sq ft footprint, high ceilings and period features such as sash windows and a historic balcony.
Sale is via Modern Auction with an undisclosed reserve; buyers should note reservation fees, auction timescales and the need for thorough pre-bid due diligence. The property is freehold, has no flood risk, and sits in a very large plot directly on the seafront — a scarce combination in this area.
While the location and size are compelling, the property sits in a very deprived area with above-average crime statistics; careful consideration of security, running costs and the local market is recommended. For buyers able to manage the renovation and auction process, this is a rare coastal opportunity with multiple income and conversion possibilities.
4 bedroom terraced house for sale in West Cliff Road, Ramsgate, CT11 — £250,000 • 4 bed • 2 bath • 1360 ft²
2 bedroom ground floor flat for sale in Wellington Crescent, Ramsgate, Kent, CT11 — £170,000 • 2 bed • 1 bath • 646 ft²
2 bedroom terraced house for sale in Alexandra Road, RAMSGATE, CT11 — £110,000 • 2 bed • 1 bath • 661 ft²
2 bedroom maisonette for sale in West Cliff Road, Ramsgate, Kent, CT11 — £145,000 • 2 bed • 1 bath • 485 ft²
6 bedroom semi-detached house for sale in Albert Road, Ramsgate, Kent, CT11 — £550,000 • 6 bed • 2 bath • 2046 ft²
1 bedroom apartment for sale in Royal Road, Ramsgate, Kent, CT11 — £85,000 • 1 bed • 1 bath • 366 ft²


























































































































